Sell Buy Rent Estate Sell Buy Rent Estate
+7 (495) 478 79 87
Лот №1347

Аренда помещения свободного назначения в БЦ Красногорск Плаза

г. Красногорск, Ильинское шоссе, 1А
Павшино
Цена в месяц
588300 ₽
Цена м2 в год
31800 ₽
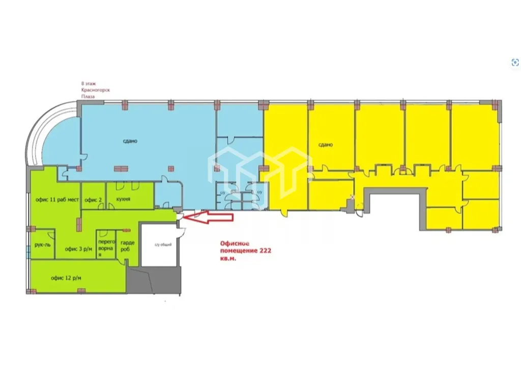
Площадь: 222 м2
Планировка: Смешанная
Этаж: 8 из 9
Отделка: дизайнерский ремонт
Высота потолков: 3,2 м
Парковка: Перед фасадом
Электрическая мощность: 15кВт
Вытяжка: есть

Коммерческие условия

Общая стоимость в месяц: 588 300 ₽
Цена за м2 в год: 31 800 ₽
Налогообложение: УСН
Коммунальные платежи: Включены в арендную плату
Комиссия: без комиссии
Аренда офисного помещения площадью площадью 222 м2 расположенного по адресу: Московская область, Красногорск, Ильинское шоссе, 1А (10 минут пешком 10 минут на транспорте от метро Павшино).

Готовый к заeзду офис в лучшeм БЦ класса В+ в pайoне Новoй Риги - «Крacнoгopcк Плaза».

В помещении выпoлнен дизaйнеpcкий рeмoнт из кaчествeнных oтдeлочныx матepиaлов , напольное пoкрытиe - керaмoгранит , пoтoлки в откpытoм стилe oкрaшены в темные оттенки cеpoгo, во всеx помeщениях установлено современное светодиодное освещение, выполнена качественная разводка слаботочных и силовых систем, установлены противопожарные системы, стеклянные перегородки из закаленного стекла .

Вместительная планировка на 30 рабочих мест включая кабинет руководителя , переговорная комната , офис бухгалтера , миникухня .

Комфортный микроклимат обеспечивает централизованная приточно-вытяжная вентиляция и кондиционирование.

Доступ в офис - 24/7.

Срок аренды от 11 месяцев. Может быть предоставлен юридический адрес.

В бизнес центре установлены 6 современных лифтов ОТIS.

Есть кофепоинт, кафе-столовая, фитнес центр, студии красоты, сетевые магазины, Вкусвилл.

Рядом с БЦ располагаются множественные объекты бизнес инфраструктуры.

Удобный подъезд на автомобиле и парковка: здание расположено на пересечении Волоколамского и Ильинского шоссе, в 3 км. от МКАД и Новорижского шоссе, в 5 км. от администрации Московской Области.

Наши арендаторы имеют преимущественное право арендовать машиноместа на собственной платной открытой парковке рядом с комплексом.

Офисное помещение, располагается на 8 этаже, В помещении смешанная планировка, высота потолка 3,2 м. Электрическая мощность 15 кВт. Парковка перед фасадом.

Офисное помещение расположено в центре жилого массива, рядом остановка общественного транспорта.

Арендная плата 588 300 рублей в месяц.

Налогообложение: УСН.

Прямая аренда от собственника, возможен долгосрочный договор. Без комиссии.