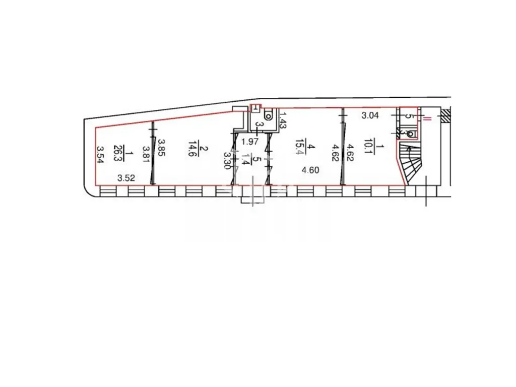
Продажа торгового помещения площадью 79,9 м2 расположенного по адресу: Москва, улица Петровка, 19с3 (10 минут пешком, 6 минут на транспорте от метро Чеховская).
Помещение располагается на 1-м этаже первой линии в центре жилого массива. В шаговой доступности от помещения, остановка общественного транспорта. Помещение находится в окружении сетевых арендаторов. Интенсивный автомобильный и пешеходный трафик вдоль помещения. Есть место для размещения рекламы. Парковка перед фасадом.
В помещении смешанная планировка, отдельный вход с фасада, высота потолка 2,8 м, витринные окна по фасаду. Электрическая мощность 3 кВт.
Стоимость 54 900 000 рублей. Без комиссии.
Налогообложение: УСН.