Продажа торгового помещения с арендатором «Верный» площадью 380 м2 расположенного по адресу: Москва, 6-я Радиальная улица, 7/1к1 ( 13 минут на транспорте от метро Царицыно).
Помещение располагается на 1-м этаже первой линии жилого комплекса. В шаговой доступности от помещения, остановка общественного транспорта. Помещение находится в окружении сетевых арендаторов. Интенсивный автомобильный и пешеходный трафик вдоль помещения. Есть место для размещения рекламы. Парковка перед фасадом.
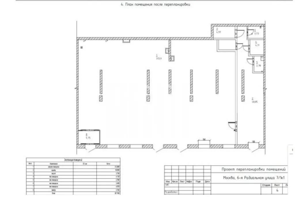
В помещении открытая планировка, отдельный вход с фасада, высота потолка 4,6 м, витринные окна по фасаду. Электрическая мощность 70 кВт.
Арендатор: «Верный», месячная арендная плата 1 000 000 рублей, 6,6% от РТО. Договор аренды подписан с 2026 года по 2036 год.
Окупаемость 9.2 лет.
Стоимость 110 000 000 рублей. Без комиссии.
Налогообложение: НДС.