Sell Buy Rent Estate Sell Buy Rent Estate
+7 (495) 478 79 87
Лот №274

Аренда помещения, 117 м2

г. Москва, 1-й Нижнелихоборский проезд, 1
Окружная
Цена в месяц
395000 ₽
Цена м2 в год
40512 ₽
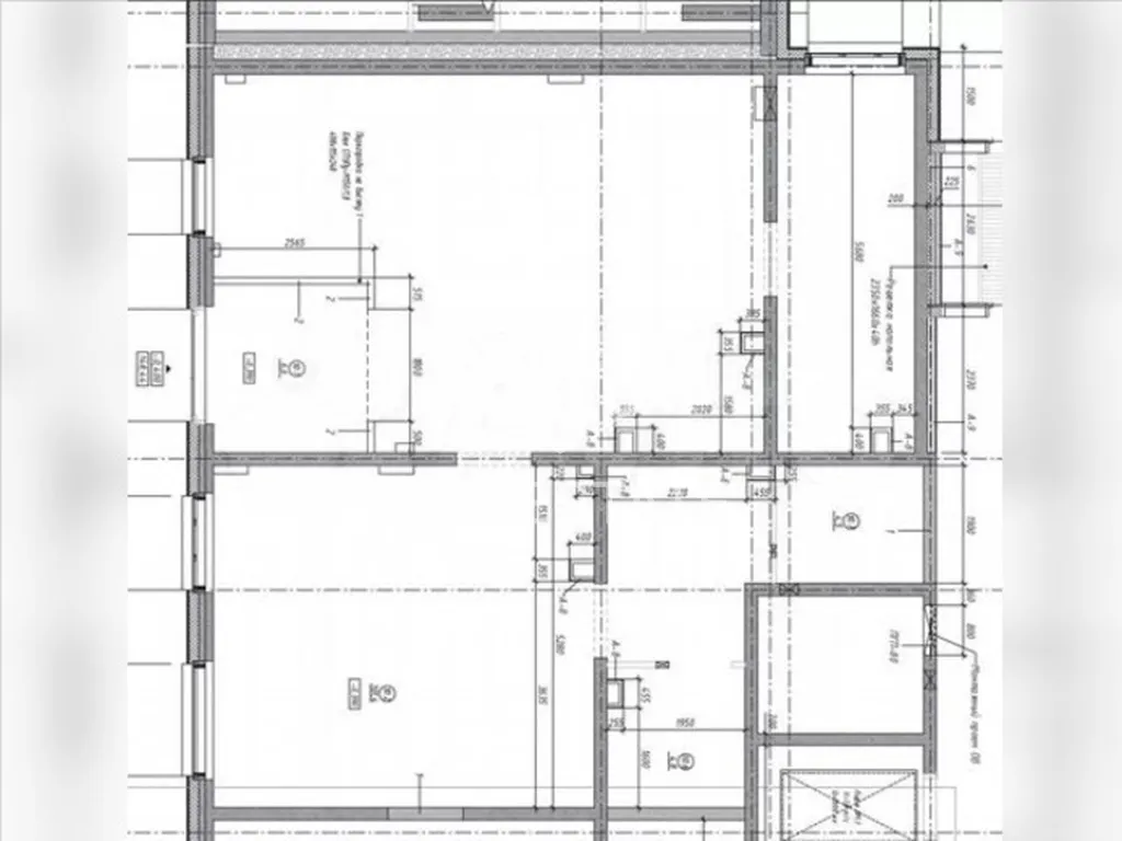
Площадь: 117 м2
Планировка: Открытая
Этаж: 1 из 11
Отделка: под отделку
Высота потолков: 4,4 м
Парковка: Перед фасадом
Электрическая мощность: 23кВт
Вытяжка: есть

Коммерческие условия

Общая стоимость в месяц: 395 000 ₽
Цена за м2 в год: 40 512 ₽
Налогообложение: УСН
Коммунальные платежи: Оплачиваются отдельно
Комиссия: без комиссии
Аренда торгового помещения площадью 117 м2 на 1-м Нижнелихоборском проезде, д. 1 (6 минут пешком от метро Окружная). 1-я линия домов.

Помещение площадью 117 м2 располагается на 1 этаже, открытая планировка, отдельный вход с фасада, высота потолка 4,4 м, витринные окна по фасаду. Электрическая мощность 23 кВт. Помещение без ремонта. Парковка перед фасадом. Место для размещения рекламы на фасаде.

Помещение располагается в центре жилого массива, рядом с метро, рядом остановка общественного транспорта. Интенсивный автомобильный и пешеходный трафик вдоль помещения. Окружение: Вкусвилл, Пятёpочкa, Винлaб, Pигла.

Прямая аренда от собственника, долгосрочный договор.

Арендная плата 395 000 рублей в месяц. УС налогообложения. Без комиссии.