Sell Buy Rent Estate Sell Buy Rent Estate
+7 (495) 478 79 87
Лот №1271

Продажа помещения свободного назначения ЖК Режиссёр

г. Москва, улица Вильгельма Пика, 1
Ботанический сад
Цена обьекта
65 000 000 ₽
Цена за м2
591 985 ₽
Площадь: 109,8 м2
Планировка: Открытая
Этаж: 1 из 48
Отделка: под отделку
Высота потолков: 5,5 м
Парковка: Перед фасадом
Электрическая мощность: 52кВт
Вытяжка: есть

Коммерческие условия

Общая стоимость объекта: 65 000 000 ₽
Цена за м2: 591 985 ₽
Налогообложение: УСН
Комиссия: без комиссии
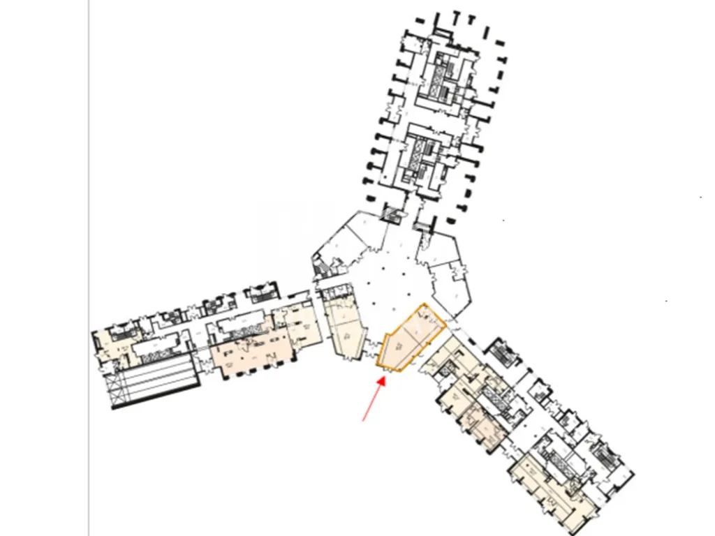
Продажа помещения площадью 109,8 м2 расположенного по адресу: Москва, улица Вильгельма Пика, 1 (15 минут пешком 3 минут на транспорте от метро Ботанический сад).

«Режиссер» - жилой комплекс бизнес-класса расположен в районе ВДНХ, рядом со сформированной жилой застройкой.
ЖК представляет собою три башни разной этажности: 29, 38 и 48 этажей.
Состоит из 981 квартиры с населением более 2 000 человек.

Помещение располагается на 1-м этаже первой линии жилого комплекса. В шаговой доступности от помещения, остановка общественного транспорта. Интенсивный автомобильный и пешеходный трафик вдоль помещения. Есть место для размещения рекламы. Парковка перед фасадом.

В помещении открытая планировка, отдельный вход с фасада, высота потолка 5,5 м, витринные окна по фасаду. Электрическая мощность 52 кВт.

Стоимость 65 000 000 рублей. Без комиссии.

Налогообложение: УСН.