Sell Buy Rent Estate Sell Buy Rent Estate
+7 (495) 478 79 87
Лот №1803

Продажа торгового помещения с арендатором стоматология

г. Москва, Новосередневский проспект, 17к2
Филатов Луг
Цена обьекта
30 000 000 ₽
Цена за м2
345 224 ₽
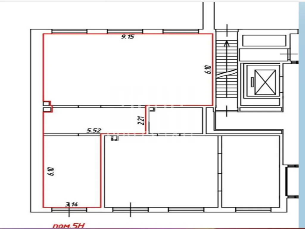
Площадь: 86.9 м2
Планировка: Открытая
Этаж: 1 из 24
Отделка: качественный ремонт
Высота потолков: 4 м
Парковка: Перед фасадом
Электрическая мощность: 20кВт
Вытяжка: есть

Коммерческие условия

Общая стоимость объекта: 30 000 000 ₽
Цена за м2: 345 224 ₽
Налогообложение: УСН
Комиссия: без комиссии
Продажа торгового помещения с арендатором «» площадью 86.9 м2 расположенного по адресу: Москва, Новомосковский административный округ, Филимонковский район, Новосередневский проспект, 17к2 (5 минут на транспорте от метро Филатов Луг).

Помещение располагается на 1-м этаже первой линии жилого комплекса. В шаговой доступности от помещения, остановка общественного транспорта. Помещение находится в окружении сетевых арендаторов. Интенсивный автомобильный и пешеходный трафик вдоль помещения. Есть место для размещения рекламы. Парковка перед фасадом.

В помещении открытая планировка, отдельный вход с фасада, высота потолка 4 м, витринные окна по фасаду. Электрическая мощность 20 кВт.

Арендатор: Стоматология на данный момент МАП 156 000 руб Индексация 20% последняя была 01.09.2025