Sell Buy Rent Estate Sell Buy Rent Estate
+7 (495) 478 79 87
Лот №2464

Продажа коммерческого помещения с арендатором Вайлдберриз

г. Москва, Любучанская улица, 1
Щербинка
Цена обьекта
32 900 000 ₽
Цена за м2
470 000 ₽
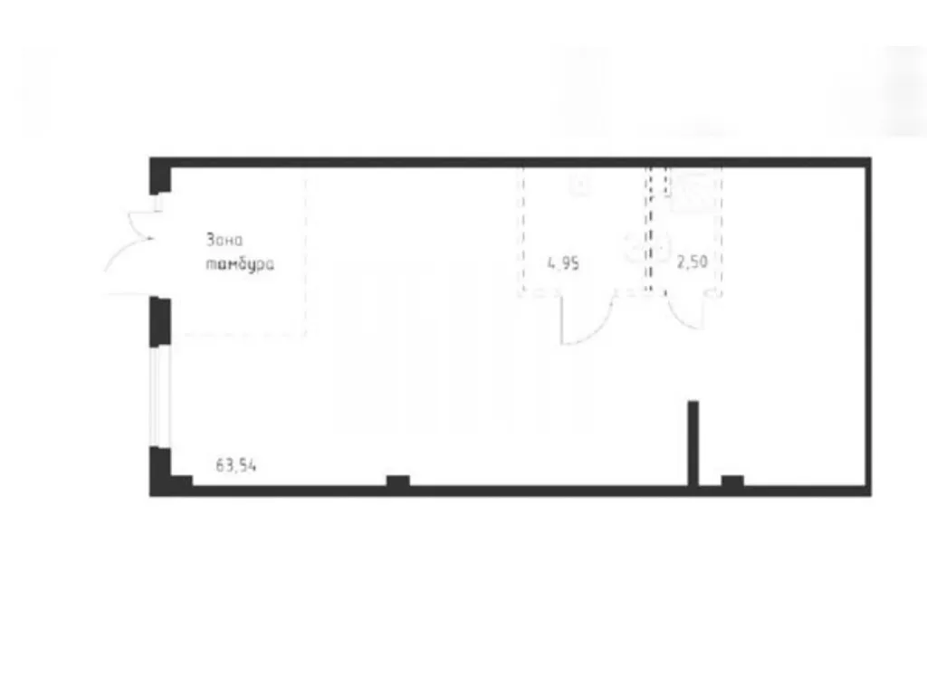
Площадь: 70 м2
Планировка: Открытая
Этаж: 1 из 14
Отделка: качественный ремонт
Высота потолков: 4,5 м
Парковка: Перед фасадом
Электрическая мощность: 13кВт
Вытяжка: есть

Информация об арендаторе

Арендатор: Вайлдберриз
Срок аренды от: 2026
Срок аренды до: 2031
Месячная арендная плата: 250 000 ₽
Ежегодная индексация: 10 %
Годовой арендный поток: 3 000 000 ₽
Окупаемость: 11.0 лет
Доходность: 9% годовых

Коммерческие условия

Общая стоимость объекта: 32 900 000 ₽
Цена за м2: 470 000 ₽
Комиссия: без комиссии
Продажа коммерческого помещения с арендатором «Вайлдберриз» площадью 70 м2 расположенного по адресу: Москва, Новомосковский административный округ, район Щербинка, Любучанская улица, 1 ( 15 минут на транспорте от станции МЦД D2 Щербинка).

Помещение располагается на 1-м этаже первой линии жилого комплекса. В шаговой доступности от помещения, остановка общественного транспорта. Помещение находится в окружении сетевых арендаторов. Интенсивный автомобильный и пешеходный трафик вдоль помещения. Есть место для размещения рекламы. Парковка перед фасадом. Дом введен в эксплуатацию 16.01.2026г. Выдача ключей 30.04.26

В помещении открытая планировка, отдельный вход с фасада, высота потолка 4,5 м, витринные окна по фасаду. Электрическая мощность 13 кВт.

Арендатор: «Вайлдберриз», месячная арендная плата 250 000 рублей. Предварительный Договор аренды подписан с 2026 года по 2031 год. Безусловная ежегодная индексация 10%.

Окупаемость 11.0 лет.

Стоимость 32 900 000 рублей. Без комиссии.