Sell Buy Rent Estate Sell Buy Rent Estate
+7 (495) 478 79 87
Лот №2486

Продажа помещения с арендатором Сeрвиcный центр

г. Москва, улица Лестева, 21к2
Шаболовская
Цена обьекта
35 000 000 ₽
Цена за м2
163 704 ₽
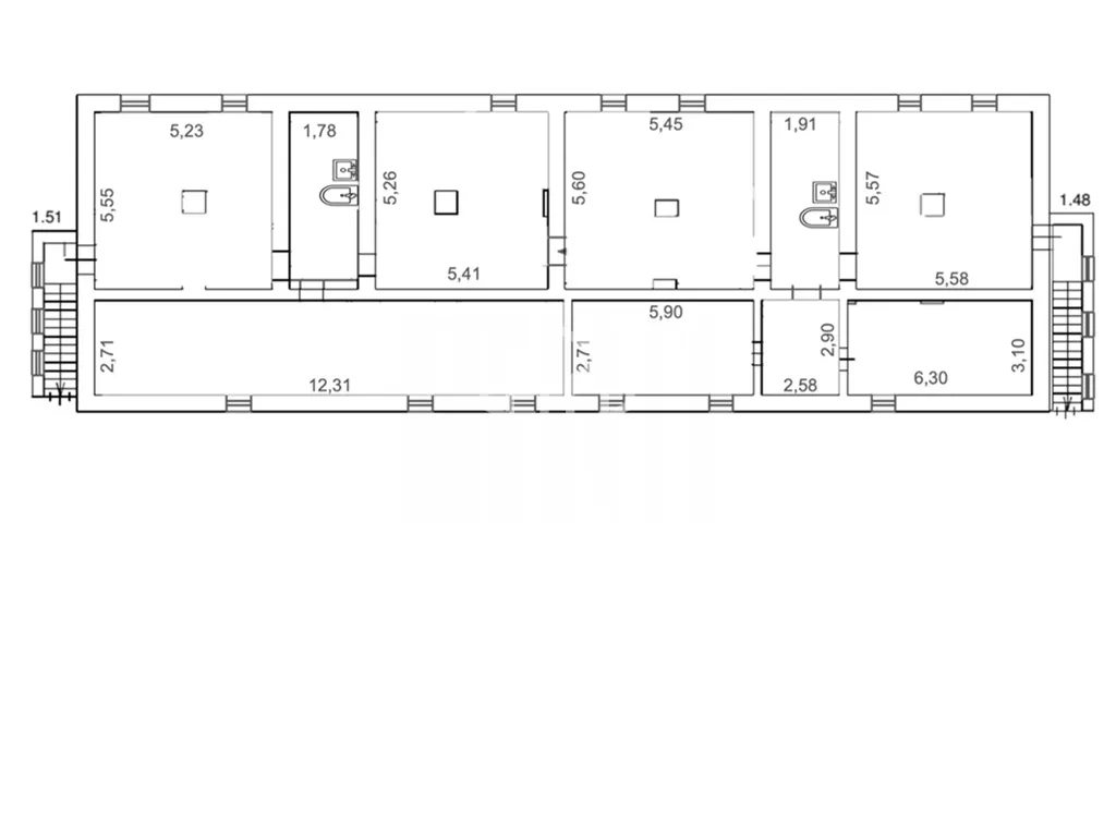
Площадь: 213,8 м2
Планировка: Смешанная
Этаж: 1,-1 из 5
Отделка: качественный ремонт
Высота потолков: 2,7 м
Парковка: Перед фасадом
Электрическая мощность: 15кВт
Вытяжка: есть

Информация об арендаторе

Арендатор: Сeрвиcный центр
Месячная арендная плата: 350 000 ₽
Ежегодная индексация: 7 %
Годовой арендный поток: 4 200 000 ₽
Окупаемость: 8.3 лет
Доходность: 12% годовых

Коммерческие условия

Общая стоимость объекта: 35 000 000 ₽
Цена за м2: 163 704 ₽
Комиссия: без комиссии
Продажа торгового помещения с арендатором «Сeрвиcный центр» площадью 213,8 м2 расположенного по адресу: Москва, улица Лестева, 21к2 (6 минут пешком от метро Шаболовская).

Помещение располагается на 1-м этаже первой линии в центре жилого массива. В шаговой доступности от помещения, остановка общественного транспорта. Помещение находится в окружении сетевых арендаторов. Интенсивный автомобильный и пешеходный трафик вдоль помещения. Есть место для размещения рекламы. Парковка перед фасадом.

В помещении смешанная планировка, отдельный вход с фасада, высота потолка 2,7 м. Электрическая мощность 15 кВт.

Арендатор: «Сeрвиcный центр», месячная арендная плата 350 000 рублей. Договор аренды подписан. Ежегодная индексация 7%.

Окупаемость 8.3 лет.

Стоимость 35 000 000 рублей. Без комиссии.