Sell Buy Rent Estate Sell Buy Rent Estate
+7 (495) 478 79 87
Лот №285

Продажа торгового помещения с арендатором магазин Дикси

г. Ступино, Центральная улица, 1
Аннино
Цена обьекта
41 500 000 ₽
Цена за м2
137 372 ₽
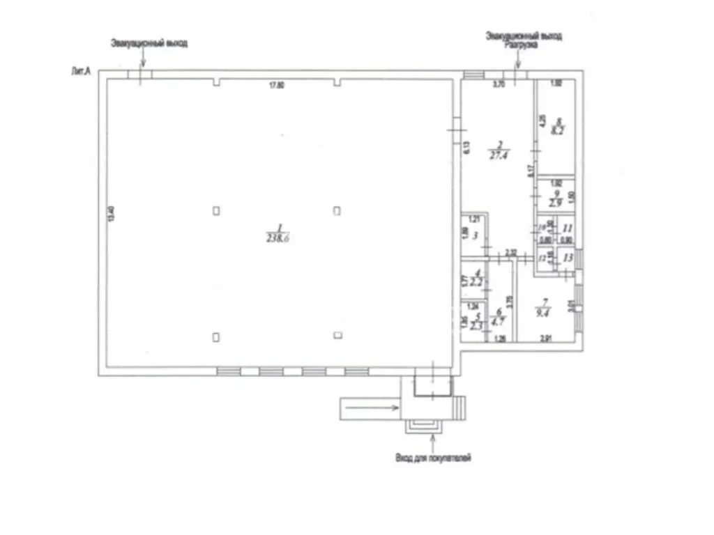
Площадь: 302,1 м2
Планировка: Открытая
Этаж: 1 из 1
Отделка: качественный ремонт
Высота потолков: 3 м
Парковка: Перед фасадом
Электрическая мощность: 40кВт
Вытяжка: есть

Информация об арендаторе

Арендатор: Дикси
Срок аренды от: февраля 2022 года
Срок аренды до: января 2032 года
Месячная арендная плата: 350 000 ₽
Годовой арендный поток: 4 200 000 ₽
Окупаемость: 9.9 лет
Доходность: 10% годовых

Коммерческие условия

Общая стоимость объекта: 41 500 000 ₽
Цена за м2: 137 372 ₽
Налогообложение: НДС
Комиссия: без комиссии
Продажа торгового помещения площадью 302,1 м2 с арендатором магазином Дикси по адресу: Московская Область, городской округ Ступино, село Лужники, Центральная улица, д. 1 (70 минут пешком от метро Аннино). 1 линия домов.

Помещение площадью 302,1 м2, располагается на 1 этаже, открытая планировка, отдельный вход с фасада, высота потолка 3 м, витринные окна по фасаду. Электрическая мощность 40 кВт. Парковка перед фасадом. Место для размещения рекламы.

Помещение располагается на первой линии жилого комплекса, в центре жилого массива, рядом остановка общественного транспорта. Интенсивный автомобильный и пешеходный трафик вдоль помещения.

Арендатор: магазин Дикси месячная арендная плата 350 000 рублей (фикс. 300 000 рублей+ 5 % от товарооборота). Договор аренды подписан на 10 лет с февраля 2022 года.

Окупаемость 9,9 лет.

Стоимость 41,5 млн. рублей. Без комиссии.