Sell Buy Rent Estate Sell Buy Rent Estate
+7 (495) 478 79 87
Лот №595

Продажа торгового помещения с арендатором кофейней Дринкит

г. Москва, Минская улица, 2Ж
Минская
Цена обьекта
19 900 000 ₽
Цена за м2
570 201 ₽
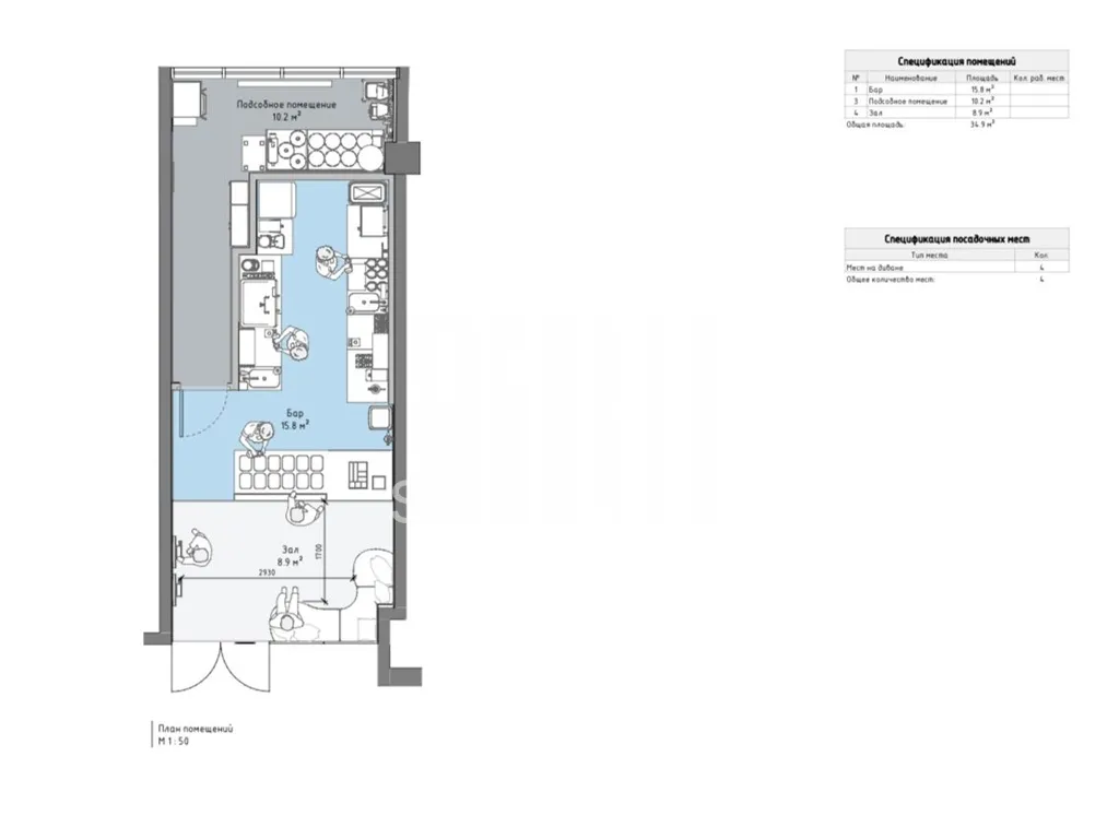
Площадь: 34.9 м2
Планировка: Открытая
Этаж: 1 из 7
Отделка: качественный ремонт
Высота потолков: 3,5 м
Парковка: Перед фасадом
Электрическая мощность: (уточнять)кВт
Вытяжка: есть

Информация об арендаторе

Арендатор: кофейня Дринкит
Срок аренды от: 04.2024
Срок аренды до: 04.2031
Месячная арендная плата: 157 000 ₽
Годовой арендный поток: 1 884 000 ₽
Окупаемость: 10.6 лет
Доходность: 9% годовых

Коммерческие условия

Общая стоимость объекта: 19 900 000 ₽
Цена за м2: 570 201 ₽
Налогообложение: НДС
Комиссия: без комиссии
Продажа торгового помещения площадью 34.9 м2 с арендатором кофейней Дринкит на ул. Минская, д. 2Ж в Бизнес центре Victory Park (6 минут пешком от метро Минская).

Помещение площадью 34.9 м2, располагается на 1 этаже, имеет открытую планировку, высота потолка 3,5 м. Есть парковка.
Помещение расположено в центре жилого массива, рядом остановка общественного транспорта. Сдан в 2014 году.
Арендатор: кофейня Дринкит, месячная арендная плата 157 000 рублей. Договор аренды подписан на 7 лет с апреля 2024 года. Ежегодная индексация 5%. Окупаемость 10,6 лет.
Стоимость 19,9 млн. рублей. С НДС. Без комиссии.