Sell Buy Rent Estate Sell Buy Rent Estate
+7 (495) 478 79 87
Лот №1183

Продажа готового арендного бизнеса с арендатором Магнит

г. Москва, Ивантеевская улица, 3к3
Бульвар Рокоссовского
Цена обьекта
70 000 000 ₽
Цена за м2
233 333 ₽
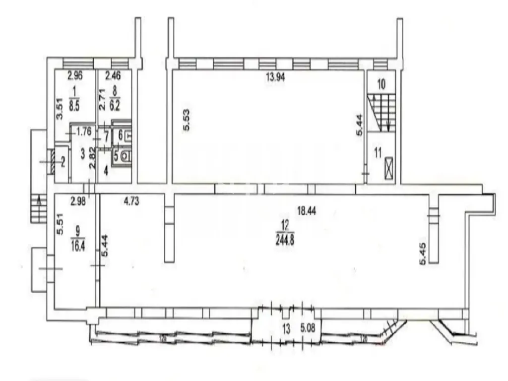
Площадь: 300 м2
Планировка: Открытая
Этаж: 1 из 5
Отделка: качественный ремонт
Высота потолков: 4 м
Парковка: Перед фасадом
Электрическая мощность: 50кВт
Вытяжка: есть

Информация об арендаторе

Арендатор: Магнит
Срок аренды от: 2025
Срок аренды до: 2036
Месячная арендная плата: 550 000 ₽
Ежегодная индексация: 5 %
Годовой арендный поток: 6 600 000 ₽
Окупаемость: 10.6 лет
Доходность: 9% годовых

Коммерческие условия

Общая стоимость объекта: 70 000 000 ₽
Цена за м2: 233 333 ₽
Налогообложение: УСН
Комиссия: без комиссии
Продажа торгового помещения с арендатором «» площадью 300 м2 расположенного по адресу: Москва, Ивантеевская улица, 3к3 (10 минут пешком от метро Бульвар Рокоссовского).

Помещение располагается на 1-м этаже жилого массива. В шаговой доступности от помещения, остановка общественного транспорта. Помещение находится в окружении сетевых арендаторов. Интенсивный автомобильный и пешеходный трафик вдоль помещения. Есть место для размещения рекламы. Парковка перед фасадом.

В помещении открытая планировка, отдельный вход с фасада, высота потолка 4 м, витринные окна по фасаду. Электрическая мощность 50 кВт.

Арендатор: «Магнит», месячная арендная плата 550 000 рублей, с 2026 г. 590 т.р, . Договор аренды подписан с 2025 года по 2036 год. Ежегодная безусловная индексация 5% (с 2028 г.)

Окупаемость 10.6 лет. ( с учетом безусловной индексации Окупаемость по факту 9 лет)

Стоимость 70 000 000 рублей. Без комиссии.

Налогообложение: УСН.