Sell Buy Rent Estate Sell Buy Rent Estate
+7 (495) 478 79 87
Лот №1265

Продажа производственно-складского помещения "Балашиха"

г. Балашиха, Новгородская улица, 59
Кучино
Цена обьекта
277 310 880 ₽
Цена за м2
153 720 ₽
Площадь: 1804 м2
Планировка: Открытая
Этаж: 1 из 1
Отделка: под отделку
Высота потолков: 8 м
Парковка: Перед фасадом
Электрическая мощность: 360кВт
Вытяжка: есть

Коммерческие условия

Общая стоимость объекта: 277 310 880 ₽
Цена за м2: 153 720 ₽
Комиссия: без комиссии
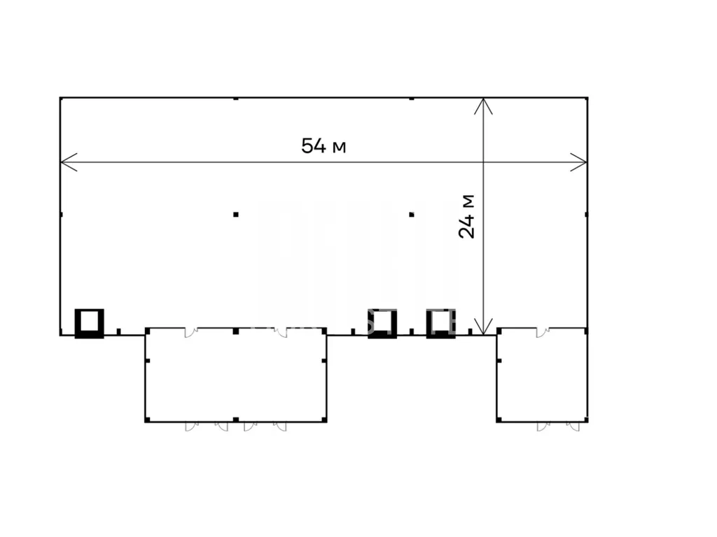
Продажа производственно-складского помещения площадью 1804 м2 расположенного по адресу: Московская область, Балашиха, Новгородская улица, 59 (20 минут на транспорте от станции МЦД D4 Кучино).

Помещение площадью 1804 м2, из них производственно-складская площадь 1312 м2, офисно-торговая площадь 492 м2, располагается на 1 этаже, открытая планировка, высота потолка 8 м, нагрузка на пол - 5т/м2. Электрическая мощность - 360 кВт. Разгрузка с пандуса. Ввод в эксплуатацию 3 кв. 2026 год.
Тип пола: бетон с антипылевым покрытием. Светодиодное освещение. Современные системы пожарной сигнализации и пожаротушения.

Стоимость 277 310 880 рублей. Без комиссии.