Sell Buy Rent Estate Sell Buy Rent Estate
+7 (495) 478 79 87
Лот №1526

Продажа торгового помещения в ЖК Рублевский квартал

г. Одинцово, ЖК Рублёвский Квартал, к55
Одинцово
Цена обьекта
24 000 000 ₽
Цена за м2
285 714 ₽
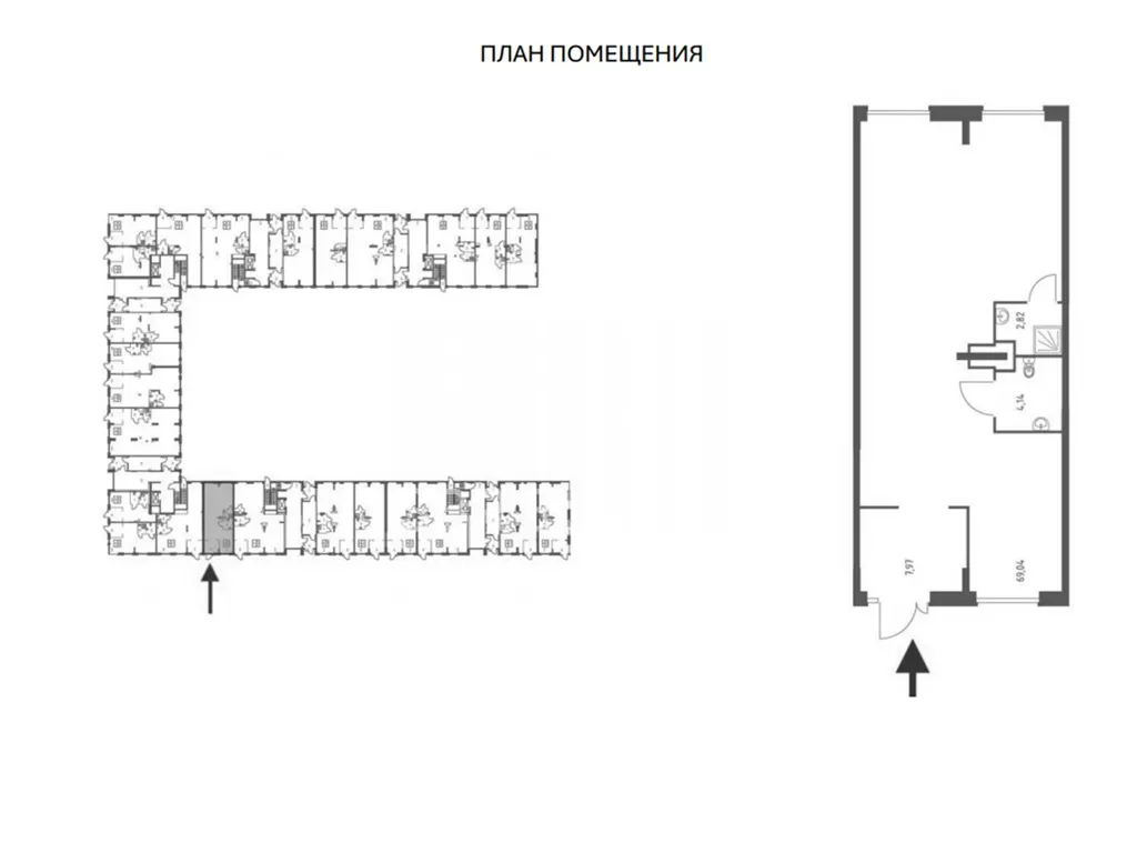
Площадь: 84 м2
Планировка: Открытая
Этаж: 1 из 10
Отделка: под отделку
Высота потолков: 4 м
Парковка: Перед фасадом
Электрическая мощность: 15кВт
Вытяжка: есть

Коммерческие условия

Общая стоимость объекта: 24 000 000 ₽
Цена за м2: 285 714 ₽
Налогообложение: УСН
Комиссия: без комиссии
Продажа торгового помещения площадью 84 м2 расположенного по адресу: Московская область, Одинцовский городской округ, село Лайково, микрорайон Город-Событие, ЖК Рублёвский Квартал, к55 (15 минут на транспорте от метро Одинцово).

Помещение располагается на 1-м этаже первой линии жилого комплекса. В шаговой доступности от помещения, остановка общественного транспорта. Помещение находится в окружении сетевых арендаторов. Интенсивный автомобильный и пешеходный трафик вдоль помещения. Есть место для размещения рекламы. Парковка перед фасадом. Ввод в эксплуатацию 31 июля 2026 год.

В помещении открытая планировка, отдельный вход с фасада, высота потолка 4 м, витринные окна по фасаду. Электрическая мощность 15 кВт.

Стоимость 24 000 000 рублей. Без комиссии.

Налогообложение: УСН.