Sell Buy Rent Estate Sell Buy Rent Estate
+7 (495) 478 79 87
Лот №1546

Продажа готового арендного бизнеса с арендатором Пятерочка

г. Москва, улица Братьев Бромлей, 5к2
Филатов Луг
Цена обьекта
230 000 000 ₽
Цена за м2
445 909 ₽
Площадь: 515,8 м2
Планировка: Открытая
Этаж: 1 из 9
Отделка: качественный ремонт
Высота потолков: 3,5 м
Парковка: Перед фасадом
Электрическая мощность: 100кВт
Вытяжка: есть

Информация об арендаторе

Арендатор: Пятерочка
Срок аренды от: 2025
Срок аренды до: 2035
Месячная арендная плата: 1 724 000 ₽
Ежегодная индексация: 5 %
Годовой арендный поток: 20 688 000 ₽
Окупаемость: 11.1 лет
Доходность: 9% годовых

Коммерческие условия

Общая стоимость объекта: 230 000 000 ₽
Цена за м2: 445 909 ₽
Комиссия: без комиссии
Продажа готового арендного бизнеса с арендатором «Пятерочка » площадью 515,8 м2 расположенного по адресу: Москва, Новомосковский административный округ, Филимонковский район, улица Братьев Бромлей, 5к2 (14 минут на транспорте от метро Филатов Луг).

Помещение располагается на 1-м этаже первой линии жилого комплекса. В шаговой доступности от помещения, остановка общественного транспорта. Помещение находится в окружении сетевых арендаторов. Интенсивный автомобильный и пешеходный трафик вдоль помещения. Есть место для размещения рекламы. Парковка перед фасадом.

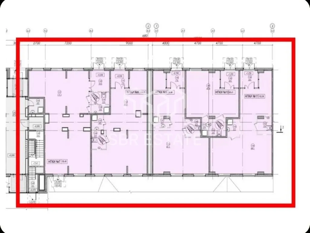
Помещение состоит из 5 смежных блоков: 130,9 м2 + 107,3 м2+103 м2+66,2 м2+108,6 м2, без капитальной стены между ними.
Арендатор: «Пятерочка», месячная арендная плата с 1 - 2 мес. - 5% от РТО, но не менее 1 100 000 руб./мес., 3 - 4 мес. - 5% от РТО, но не менее 550 000 руб./мес., 5 - 12 мес. - 5% от РТО, но не менее 1 100 000 руб./мес., с 13 мес. - 5% от РТО, но не менее 1 724 000 руб./мес.
Коммунальные платежи оплачиваются Арендатором отдельно. Договор аренды подписан с 2025 года по 2035 год. Ежегодная индексация 5% по соглашению сторон.
В ЖК Середневский лес 4 900 квартир + ЖК Цветочные поляны 3 000 квартир.

Окупаемость 11.1 лет.

Стоимость 230 000 000 рублей.
Без комиссии.