Sell Buy Rent Estate Sell Buy Rent Estate
+7 (495) 478 79 87
Лот №2219

Продажа торгового помещения с арендатором Озон

г. Боброво, Лесная улица, 14
Бульвар Дмитрия Донского
Цена обьекта
16 500 000 ₽
Цена за м2
358 696 ₽
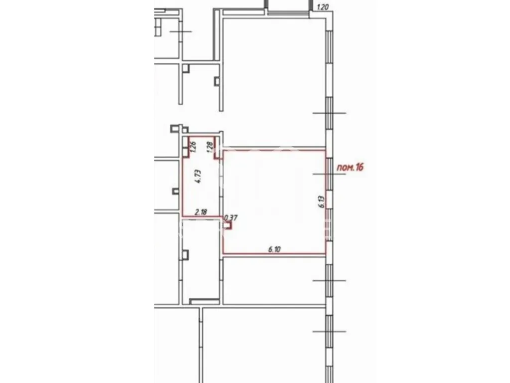
Площадь: 46 м2
Планировка: Открытая
Этаж: 1 из 25
Отделка: качественный ремонт
Высота потолков: 4 м
Парковка: Перед фасадом
Электрическая мощность: 9кВт
Вытяжка: есть

Информация об арендаторе

Арендатор: Озон
Срок аренды от: 01.09.2025
Срок аренды до: 01.09.2027
Месячная арендная плата: 120 000 ₽
Годовой арендный поток: 1 440 000 ₽
Окупаемость: 11.5 лет
Доходность: 9% годовых

Коммерческие условия

Общая стоимость объекта: 16 500 000 ₽
Цена за м2: 358 696 ₽
Комиссия: без комиссии
Продажа торгового помещения с арендатором «Озон» площадью 46 м2 расположенного по адресу: Московская область, Ленинский городской округ, посёлок городского типа Боброво, Лесная улица, 14 ( 17 минут на транспорте от метро Бульвар Дмитрия Донского).

Помещение располагается на 1-м этаже первой линии жилого комплекса. В шаговой доступности от помещения, остановка общественного транспорта. Помещение находится в окружении сетевых арендаторов. Интенсивный автомобильный и пешеходный трафик вдоль помещения. Есть место для размещения рекламы. Парковка перед фасадом.

В помещении открытая планировка, отдельный вход с фасада, высота потолка 4 м, витринные окна по фасаду. Электрическая мощность 9 кВт.

Арендатор: «Озон», месячная арендная плата 120 000 рублей. Договор аренды подписан с 01.09.2025 года по 01.09.2027 год. Безусловная ежегодная индексация.

Окупаемость 11.5 лет.

Стоимость 16 500 000 рублей. Без комиссии.