Sell Buy Rent Estate Sell Buy Rent Estate
+7 (495) 478 79 87
Лот №2263

Продажа торгового помещения в ЖК 1-й Ленинградский

г. Москва, Ленинградское шоссе, 228к1
Молжаниново
Цена обьекта
38 200 000 ₽
Цена за м2
267 507 ₽
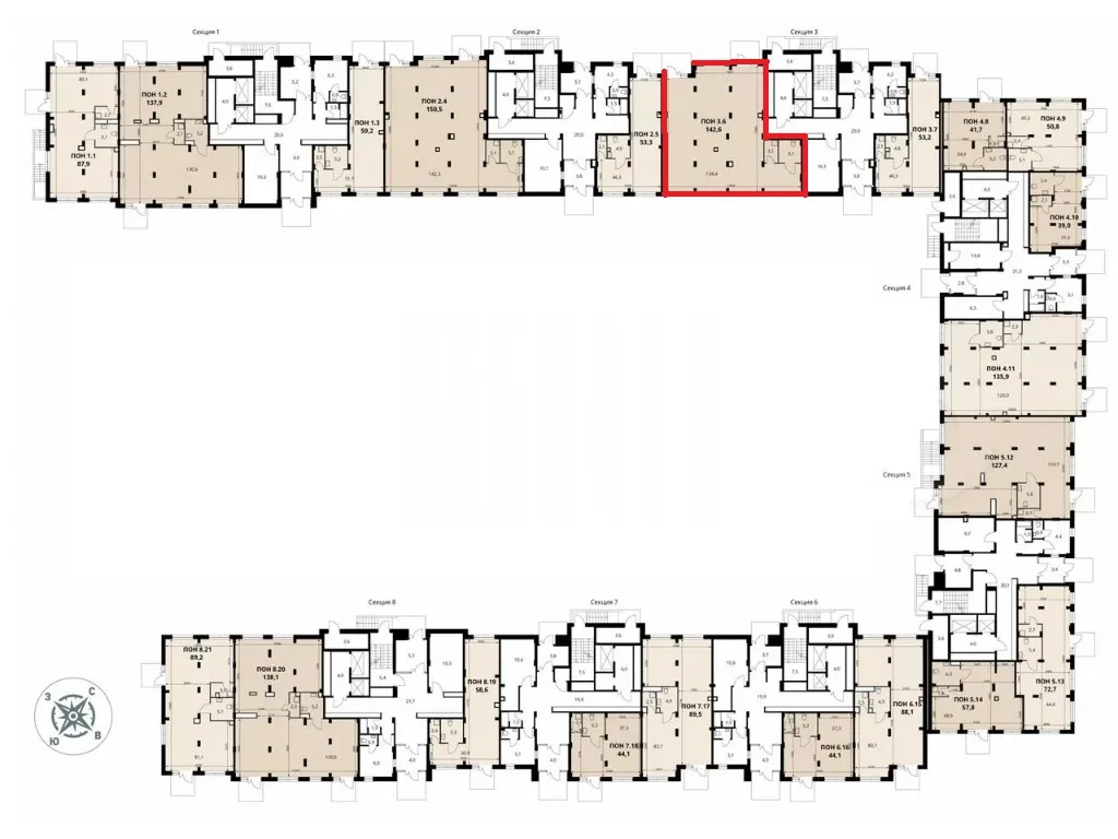
Площадь: 142,8 м2
Планировка: Открытая
Этаж: 1 из 15
Отделка: под отделку
Высота потолков: 4,5 м
Парковка: Перед фасадом
Электрическая мощность: 41кВт
Вытяжка: есть

Коммерческие условия

Общая стоимость объекта: 38 200 000 ₽
Цена за м2: 267 507 ₽
Комиссия: без комиссии
Продажа торгового помещения площадью 142,8 м2 расположенного по адресу: Москва, Ленинградское шоссе, 228к1, ЖК "1-й Ленинградский" (13 минут пешком от метро Молжаниново).

Помещение располагается на 1-м этаже первой линии жилого комплекса. В шаговой доступности от помещения, остановка общественного транспорта. Помещение находится в окружении сетевых арендаторов. Интенсивный автомобильный и пешеходный трафик вдоль помещения. Есть место для размещения рекламы. Парковка перед фасадом.

В помещении открытая планировка, 2 отдельных входа, высота потолка 4,5 м, 2 санузла, витринные окна по фасаду. Электрическая мощность 41 кВт. Технически несложно разбить на 2 арендатора.

Стоимость 38 200 000 рублей. Без комиссии.