Sell Buy Rent Estate Sell Buy Rent Estate
+7 (495) 478 79 87
Лот №2267

Продажа торгового помещения с арендатором Автозапчасти и др.

г. Москва, Варшавское шоссе, 145к7
Аннино
Цена обьекта
164 900 000 ₽
Цена за м2
138 571 ₽
Площадь: 1190 м2
Планировка: Открытая
Этаж: 1 из 12
Отделка: качественный ремонт
Высота потолков: 3 м
Парковка: Перед фасадом
Электрическая мощность: 150кВт
Вытяжка: есть

Информация об арендаторе

Арендатор: Автозапчасти и др.
Месячная арендная плата: 1 494 980 ₽
Годовой арендный поток: 17 939 760 ₽
Окупаемость: 9.2 лет
Доходность: 11% годовых

Коммерческие условия

Общая стоимость объекта: 164 900 000 ₽
Цена за м2: 138 571 ₽
Комиссия: без комиссии
Продажа торгового помещения с арендатором «Автозапчасти и др.» площадью 1190 м2 расположенного по адресу: Москва, Варшавское шоссе, 145к7 (8 минут пешком от метро Аннино).

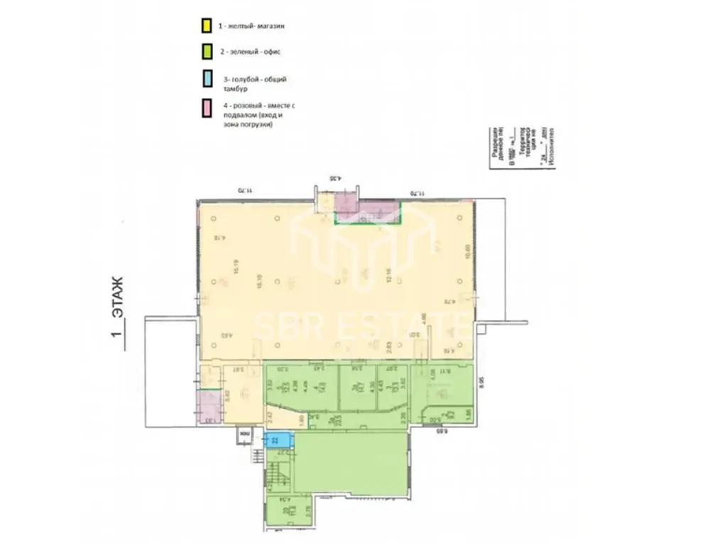
Помещение располагается на 1-м этаже (600 м2) и в подвальном этаже (590 м2) первой линии в центре жилого массива. В шаговой доступности от помещения, остановка общественного транспорта. Помещение находится в окружении сетевых арендаторов. Интенсивный автомобильный и пешеходный трафик вдоль помещения. Есть место для размещения рекламы. Парковка перед фасадом.

В помещении открытая планировка, 5 отдельных входов, 3 зоны разгрузки, зона разгрузки - дебаркадер, высота потолка 3 м, витринные окна по фасаду. Электрическая мощность 150 кВт.

Арендаторы: «Автозапчасти», «Строительные инструменты», «Натяжные потолки» общая месячная арендная плата 1 494 980 рублей. Договора аренды подписаны.

Окупаемость 9.2 лет.

Стоимость 164 900 000 рублей. Без комиссии.