Sell Buy Rent Estate Sell Buy Rent Estate
+7 (495) 478 79 87
Лот №817

Продажа торгового помещения в ЖК Середневский лес

г. Москва, Новосередневский проспект, 19
Филатов Луг
Цена обьекта
25 000 000 ₽
Цена за м2
401 284 ₽
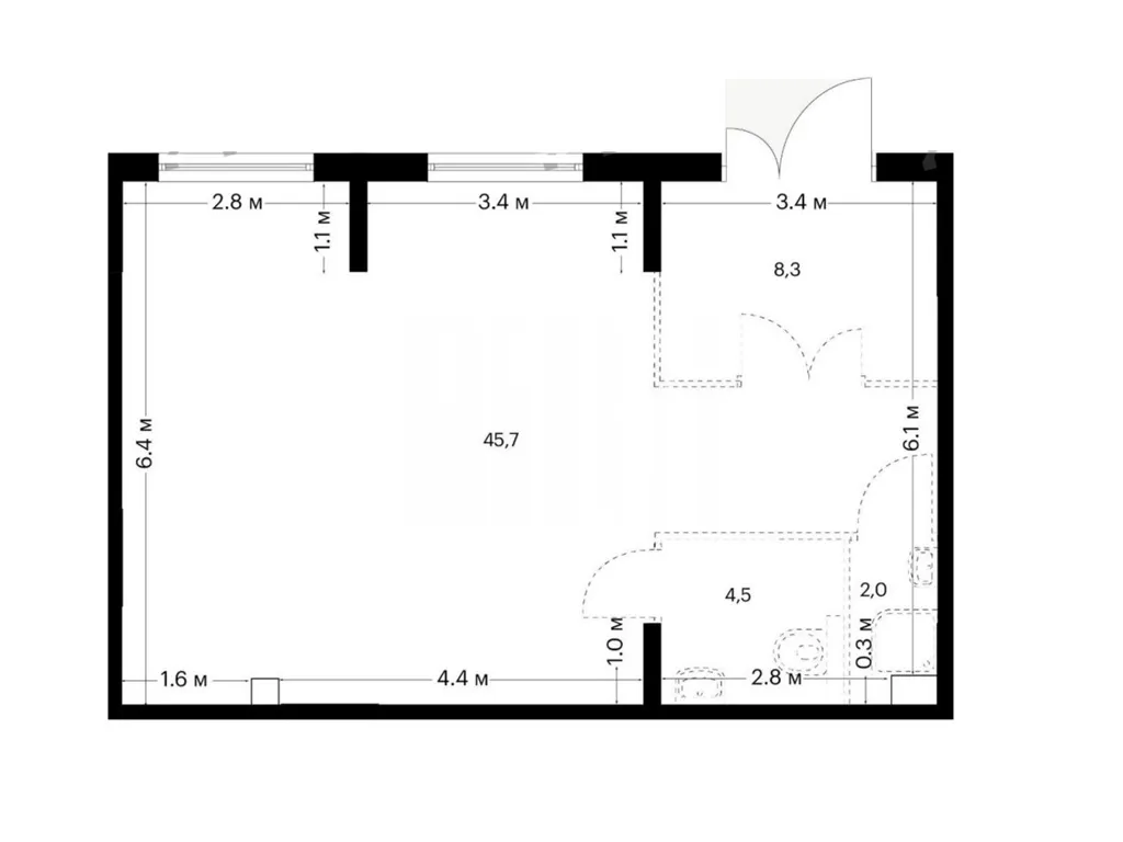
Площадь: 62,3 м2
Планировка: Открытая
Этаж: 1 из 9
Отделка: под отделку
Высота потолков: 3,5 м
Парковка: Перед фасадом
Электрическая мощность: 12кВт
Вытяжка: есть

Коммерческие условия

Общая стоимость объекта: 25 000 000 ₽
Цена за м2: 401 284 ₽
Налогообложение: УСН
Комиссия: без комиссии
Продажа торгового помещения площадью 62,3 м2 расположенного по адресу: Москва, Новомосковский административный округ, Филимонковский район, Новосередневский проспект, 19 ( 16 минут на транспорте от метро Филатов Луг).

Помещение располагается на 1-м этаже первой линии жилого комплекса. В шаговой доступности от помещения, остановка общественного транспорта. Помещение находится в окружении сетевых арендаторов. Интенсивный автомобильный и пешеходный трафик вдоль помещения. Есть место для размещения рекламы. Парковка перед фасадом. Ввод в эксплуатацию 2 кв. 2026 года.

В помещении открытая планировка, отдельный вход с фасада, высота потолка 3,5 м, витринные окна по фасаду. Электрическая мощность 12 кВт.

Стоимость 25 000 000 рублей. Без комиссии.

Налогообложение: УСН.