Sell Buy Rent Estate Sell Buy Rent Estate
+7 (495) 478 79 87
Лот №1228

Продажа торгового помещения с арендатором бассейн Китенок

г. Москва, Берёзовая аллея, 19к4
Ботанический сад
Цена обьекта
41 000 000 ₽
Цена за м2
502 451 ₽
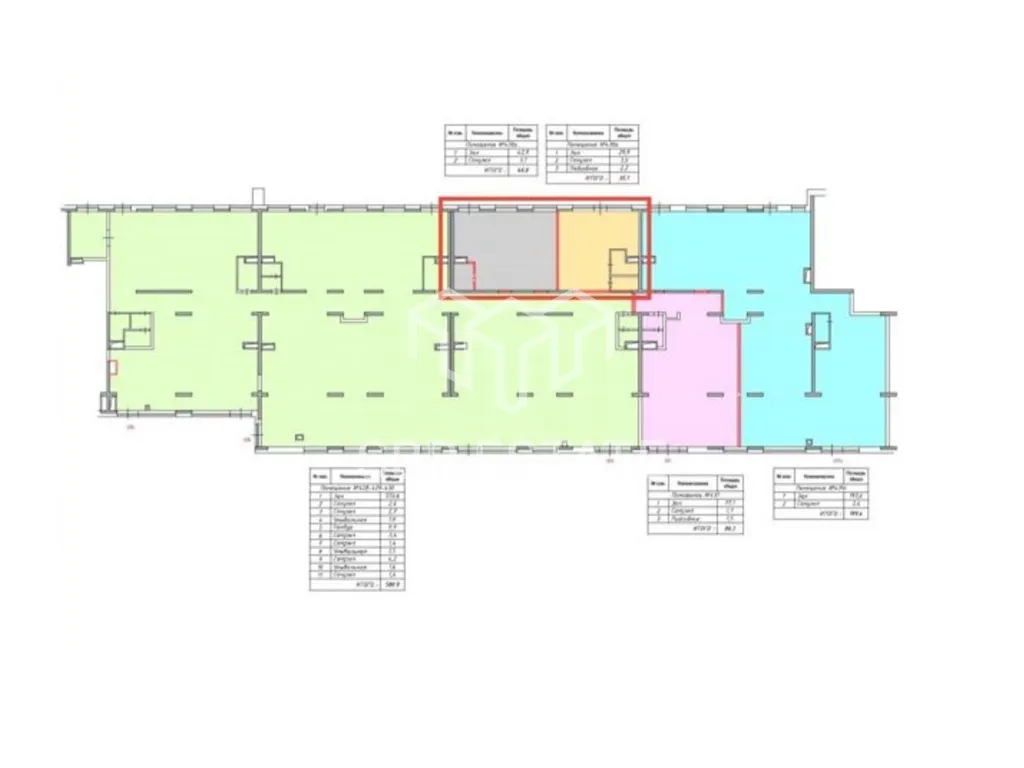
Площадь: 81,6 м2
Планировка: Открытая
Этаж: 1 из 25
Отделка: качественный ремонт
Высота потолков: 4 м
Парковка: Перед фасадом
Электрическая мощность: 40кВт
Вытяжка: есть

Информация об арендаторе

Арендатор: Бассейн Китенок
Месячная арендная плата: 307 000 ₽
Ежегодная индексация: 7 %
Годовой арендный поток: 3 684 000 ₽
Окупаемость: 11.1 лет
Доходность: 9% годовых

Коммерческие условия

Общая стоимость объекта: 41 000 000 ₽
Цена за м2: 502 451 ₽
Налогообложение: УСН
Комиссия: без комиссии
Продажа торгового помещения с арендатором бассейн «Китенок» площадью 81,6 м2 расположенного по адресу: Москва, Берёзовая аллея, 19к4 (17 минут пешком, 5 минут на транспорте от метро Ботанический сад).

Помещение располагается на 1-м этаже первой линии жилого комплекса. В шаговой доступности от помещения, остановка общественного транспорта. Помещение находится в окружении сетевых арендаторов. Интенсивный автомобильный и пешеходный трафик вдоль помещения. Есть место для размещения рекламы. Парковка перед фасадом.

В помещении открытая планировка, отдельный вход с фасада, высота потолка 4 м, витринные окна по фасаду. Электрическая мощность 40 кВт.

Арендатор: бассейн «Китенок», месячная арендная плата 307 000 рублей. Безусловная ежегодная индексация 7%.

Окупаемость 11.1 лет.

Стоимость 41 000 000 рублей. Без комиссии.

Налогообложение: УСН.