Sell Buy Rent Estate Sell Buy Rent Estate
+7 (495) 478 79 87
Лот №1383

Продажа торгового помещения в ЖК Томилино Парк

г. Люберцы, жилой комплекс Томилино Парк, к6.1
Котельники
Цена обьекта
23 548 000 ₽
Цена за м2
280 000 ₽
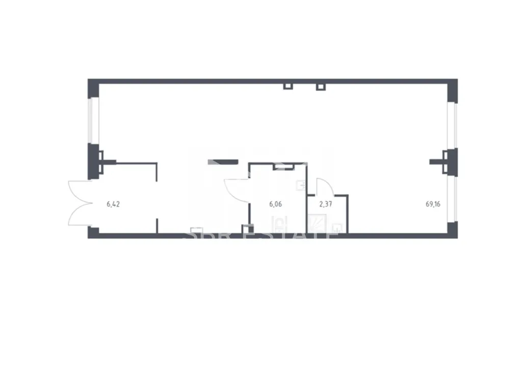
Площадь: 84,1 м2
Планировка: Открытая
Этаж: 1 из 17
Отделка: под отделку
Высота потолков: 3,5 м
Парковка: Перед фасадом
Электрическая мощность: 16кВт
Вытяжка: есть

Коммерческие условия

Общая стоимость объекта: 23 548 000 ₽
Цена за м2: 280 000 ₽
Налогообложение: УСН
Комиссия: без комиссии
Продажа торгового помещения площадью 84,1 м2 расположенного по адресу: Московская область, городской округ Люберцы, посёлок городского типа Мирный, жилой комплекс Томилино Парк, к6.1 ( 17 минут на транспорте от метро Котельники).

Помещение располагается на 1-м этаже первой линии жилого комплекса. В шаговой доступности от помещения, остановка общественного транспорта. Помещение находится в окружении сетевых арендаторов. Интенсивный автомобильный и пешеходный трафик вдоль помещения. Есть место для размещения рекламы. Парковка перед фасадом.

В помещении открытая планировка, отдельный вход с фасада, высота потолка 3,5 м, витринные окна по фасаду. Электрическая мощность 16 кВт.

Стоимость 23 548 000 рублей. Без комиссии.

Налогообложение: УСН.