Sell Buy Rent Estate Sell Buy Rent Estate
+7 (495) 478 79 87
Лот №1476

Готовый арендный бизнес с арендатором Самокат

г. Ленинский округ, Взлётная улица, 3
Домодедовская
Цена обьекта
75 000 000 ₽
Цена за м2
324 675 ₽
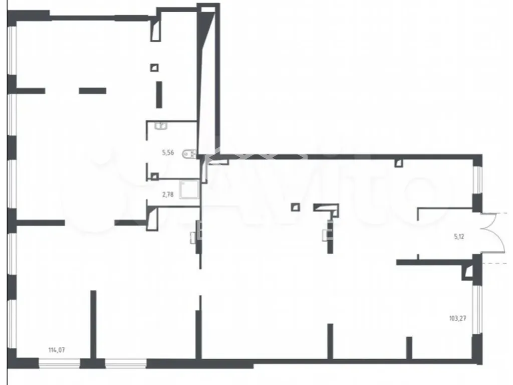
Площадь: 231 м2
Планировка: Открытая
Этаж: 1 из 17
Отделка: качественный ремонт
Высота потолков: 4,2 м
Парковка: Перед фасадом
Электрическая мощность: 40кВт
Вытяжка: есть

Информация об арендаторе

Арендатор: Самокат
Срок аренды от: 2025
Срок аренды до: 2030
Месячная арендная плата: 572 000 ₽
Ежегодная индексация: 4 %
Годовой арендный поток: 6 864 000 ₽
Окупаемость: 10.9 лет
Доходность: 9% годовых

Коммерческие условия

Общая стоимость объекта: 75 000 000 ₽
Цена за м2: 324 675 ₽
Налогообложение: УСН
Комиссия: без комиссии
Продажа торгового помещения с арендатором «Самокат» площадью 231 м2 расположенного по адресу: Московская область, Ленинский городской округ, деревня Коробово, Взлётная улица, 3 ( минут пешком 20 минут на транспорте от метро Домодедовская).

Помещение располагается на 1-м этаже первой линии жилого комплекса. В шаговой доступности от помещения, остановка общественного транспорта. Помещение находится в окружении сетевых арендаторов. Интенсивный автомобильный и пешеходный трафик вдоль помещения. Есть место для размещения рекламы. Парковка перед фасадом.

В помещении открытая планировка, отдельный вход с фасада, высота потолка 4,2 м, витринные окна по фасаду. Электрическая мощность 40 кВт.

Арендатор: «Самокат», месячная арендная плата 572 000 рублей. Договор аренды подписан с 2025 года по 2030 год. Ежегодная индексация 4%.

Окупаемость 10.9 лет.

Стоимость 75 000 000 рублей. Без комиссии.

Налогообложение: УСН.