Sell Buy Rent Estate Sell Buy Rent Estate
+7 (495) 478 79 87
Лот №2022

Продажа помещения свободного назначения 175,3м2

г. Москва, 1-я улица Текстильщиков, 12/9
Текстильщики
Цена обьекта
17 000 000 ₽
Цена за м2
96 977 ₽
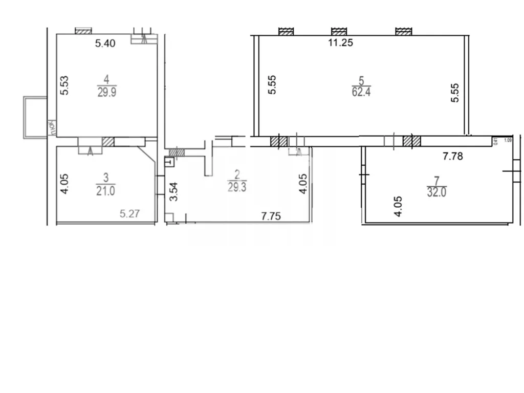
Площадь: 175,3 м2
Планировка: Смешанная
Этаж: 1,-1 из 5
Отделка: качественный ремонт
Высота потолков: 2,2 м
Парковка: Перед фасадом
Электрическая мощность: 15кВт
Вытяжка: есть

Коммерческие условия

Общая стоимость объекта: 17 000 000 ₽
Цена за м2: 96 977 ₽
Комиссия: без комиссии
Продажа торгового помещения площадью 175,3 м2 расположенного по адресу: Москва, 1-я улица Текстильщиков, 12/9 (10 минут пешком, 5 минут на транспорте от метро Текстильщики).

Помещение располагается на цокольном этаже первой линии в центре жилого массива. В шаговой доступности от помещения, остановка общественного транспорта. Помещение находится в окружении сетевых арендаторов. Интенсивный пешеходный трафик вдоль помещения. Есть место для размещения рекламы. Парковка перед фасадом.

В помещении смешанная планировка, отдельный вход, высота потолка 2,2 м. Электрическая мощность 15 кВт.

Стоимость 17 000 000 рублей. Без комиссии.