Sell Buy Rent Estate Sell Buy Rent Estate
+7 (495) 478 79 87
Лот №2096

Продажа торгового помещения с арендаторами аптека Горздрав, Магнит

г. Москва, Хабаровская улица, 8
Щёлковская
Цена обьекта
105 000 000 ₽
Цена за м2
622 038 ₽
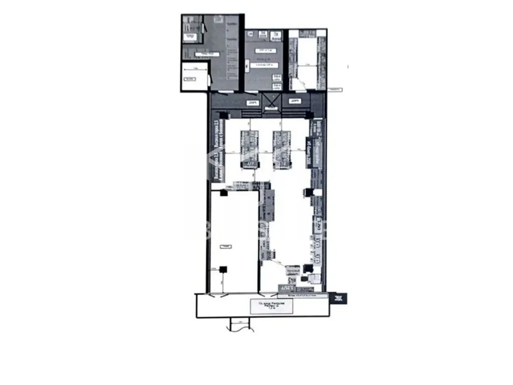
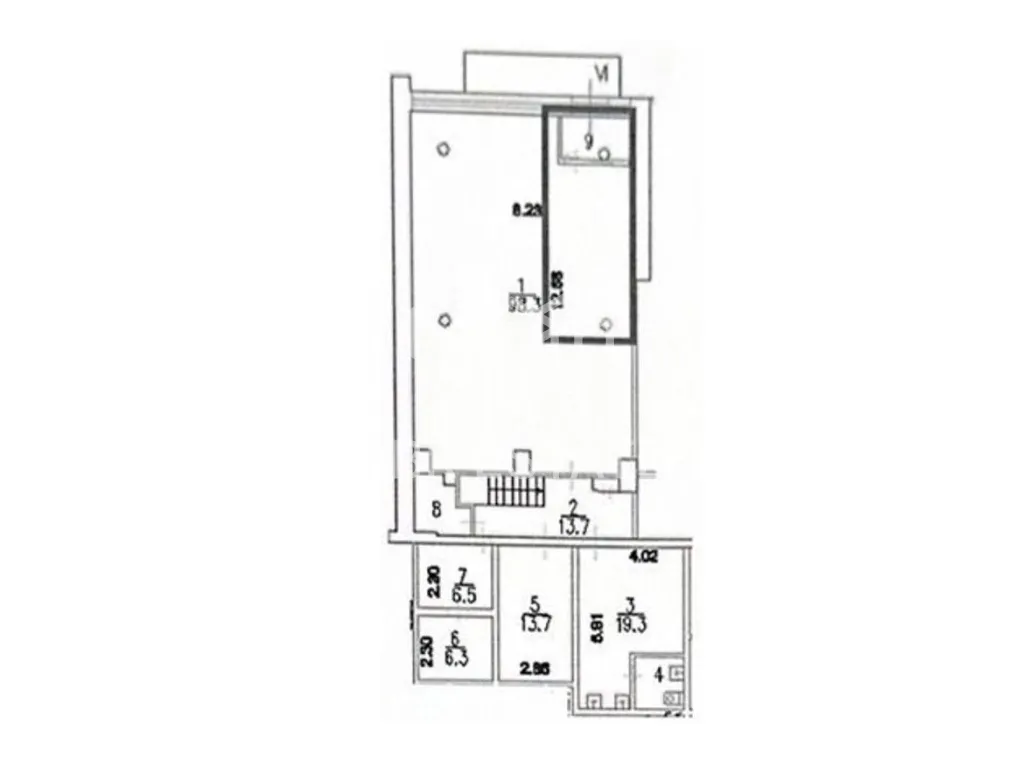
Площадь: 168,8 м2
Планировка: Открытая
Этаж: 1 из 12
Отделка: качественный ремонт
Высота потолков: 3 м
Парковка: Перед фасадом
Электрическая мощность: 33кВт
Вытяжка: есть

Информация об арендаторе

Арендатор: Магнит, Горздрав
Срок аренды от: 2025
Срок аренды до: 2035
Месячная арендная плата: 800 000 ₽
Ежегодная индексация: 5 %
Годовой арендный поток: 9 600 000 ₽
Окупаемость: 10.9 лет
Доходность: 9% годовых

Коммерческие условия

Общая стоимость объекта: 105 000 000 ₽
Цена за м2: 622 038 ₽
Комиссия: без комиссии
Продажа торгового помещения с арендатором «Магнит, Горздрав» площадью 168,8 м2 расположенного по адресу: Москва, Хабаровская улица, 8 ( 9 минут на транспорте от метро Щёлковская).

Помещение располагается на 1-м этаже первой линии жилого комплекса. В шаговой доступности от помещения, остановка общественного транспорта. Помещение находится в окружении сетевых арендаторов. Интенсивный автомобильный и пешеходный трафик вдоль помещения. Есть место для размещения рекламы. Парковка перед фасадом.

В помещении открытая планировка, отдельный вход с фасада, высота потолка 3 м, витринные окна по фасаду. Электрическая мощность 33 кВт.

Арендатор: «Магнит, Горздрав», общая месячная арендная плата 800 000 рублей.
«Магнит»(131,8 м2), месячная арендная плата 600 000 рублей, 5% от РТО. Договор аренды подписан с 2025 года по 2035 год. Ежегодная индексация 5%.
«Горздрав»(37 м2), месячная арендная плата 200 000 рублей,. Договор аренды подписан с 2025 года по 2030 год. Безусловная ежегодная индексация 6%.

Окупаемость 10.9 лет.

Стоимость 105 000 000 рублей. Без комиссии.