Sell Buy Rent Estate Sell Buy Rent Estate
+7 (495) 478 79 87
Лот №2411

Продажа торгового помещения с арендатором Вайлдберриз

г. Одинцово, микрорайон Равновесие, 5
Одинцово
Цена обьекта
39 000 000 ₽
Цена за м2
278 571 ₽
Площадь: 140 м2
Планировка: Открытая
Этаж: 1 из 6
Отделка: качественный ремонт
Высота потолков: 3 м
Парковка: Перед фасадом
Электрическая мощность: 28кВт
Вытяжка: есть

Информация об арендаторе

Арендатор: Вайлдберриз
Срок аренды от: 12.2025
Месячная арендная плата: 378 000 ₽
Годовой арендный поток: 4 536 000 ₽
Окупаемость: 8.6 лет
Доходность: 12% годовых

Коммерческие условия

Общая стоимость объекта: 39 000 000 ₽
Цена за м2: 278 571 ₽
Комиссия: без комиссии
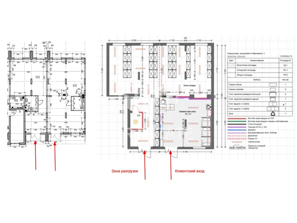
Продажа торгового помещения с арендатором «Вайлдберриз» площадью 140 м2 расположенного по адресу: Московская область, Одинцовский городской округ, село Перхушково, микрорайон Равновесие, 5 ( 25 минут на транспорте от МЦД D 3 Одинцово).

Помещение располагается на 1-м этаже первой линии жилого комплекса. В шаговой доступности от помещения, остановка общественного транспорта. Помещение находится в окружении сетевых арендаторов. Интенсивный автомобильный и пешеходный трафик вдоль помещения. Есть место для размещения рекламы. Парковка перед фасадом.

В помещении открытая планировка, отдельный вход с фасада, высота потолка 3 м, витринные окна по фасаду. Электрическая мощность 28 кВт.

Арендатор: «Вайлдберриз», месячная арендная плата 378 000 рублей. Договор аренды подписан с 12.2025 года по год. Ежегодная индексация.

Окупаемость 8.6 лет.

Стоимость 39 000 000 рублей. Без комиссии.