Sell Buy Rent Estate Sell Buy Rent Estate
+7 (495) 478 79 87
Лот №2463

Продажа торгового помещения с арендатором Салон Красоты

г. Москва, 3-я Хорошёвская улица, 21к6
Зорге
Цена обьекта
34 750 000 ₽
Цена за м2
757 081 ₽
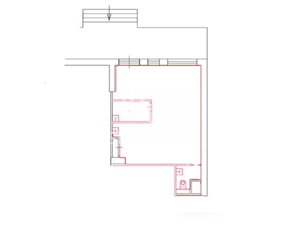
Площадь: 45,9 м2
Планировка: Открытая
Этаж: 1 из 19
Отделка: качественный ремонт
Высота потолков: 4.5 м
Парковка: Перед фасадом
Электрическая мощность: 9кВт
Вытяжка: есть

Информация об арендаторе

Арендатор: Салон Красоты
Месячная арендная плата: 220 000 ₽
Ежегодная индексация: 5 %
Годовой арендный поток: 2 640 000 ₽
Окупаемость: 13.2 лет
Доходность: 8% годовых

Коммерческие условия

Общая стоимость объекта: 34 750 000 ₽
Цена за м2: 757 081 ₽
Комиссия: без комиссии
Продажа торгового помещения с арендатором Салон красоты «4 Hands» площадью 45,9 м2 расположенного по адресу: Москва, 3-я Хорошёвская улица, 21к6 (10 минут пешком от метро Зорге).

Помещение располагается на 1-м этаже первой линии жилого комплекса. В шаговой доступности от помещения, остановка общественного транспорта. Помещение находится в окружении сетевых арендаторов. Интенсивный автомобильный и пешеходный трафик вдоль помещения. Есть место для размещения рекламы. Парковка перед фасадом.

В помещении открытая планировка, отдельный вход с фасада, высота потолка 4.5 м, витринные окна по фасаду. Электрическая мощность 9 кВт.

Арендатор: Салон красоты «4 Hands», месячная арендная плата 220 000 рублей. Договор аренды подписан. Ежегодная индексация 5%.

Окупаемость 13.2 лет.

Стоимость 34 750 000 рублей. Без комиссии.