Sell Buy Rent Estate Sell Buy Rent Estate
+7 (495) 478 79 87
Лот №78

Продажа коммерческого помещения с арендатором Кофейня

г. Москва, улица Бажова, 4
Ростокино
Цена обьекта
13 200 000 ₽
Цена за м2
536 585 ₽
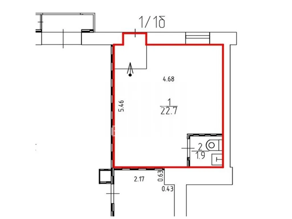
Площадь: 24,6 м2
Планировка: Открытая
Этаж: 1 из 8
Отделка: качественный ремонт
Высота потолков: 3,5 м
Парковка: Перед фасадом
Электрическая мощность: 15кВт
Вытяжка: нет

Информация об арендаторе

Арендатор: Кофейня
Срок аренды до: 09.09.2029 г.
Месячная арендная плата: 100 000 ₽
Ежегодная индексация: 7 %
Годовой арендный поток: 1 200 000 ₽
Окупаемость: 11.0 лет
Доходность: 9% годовых

Коммерческие условия

Общая стоимость объекта: 13 200 000 ₽
Цена за м2: 536 585 ₽
Налогообложение: УСН
Комиссия: без комиссии
Продажа коммерческого помещения 24,6 м2 с арендатором "Кофейня" на ул. Бажова д. 4 (7 минут пешком от метро Ростокино). 1-я линия домов.

Помещение 24,6 м2, располагается на 1 этаже, открытая планировка, отдельный вход с фасада, высота потолка 3,5 м, витринные окна по фасаду. Электрическая мощность 15кВт. Парковка перед фасадом. Место для размещения рекламы.

Помещение располагается на первой линии жилого массива, напротив находится парк Акведук. Интенсивный автомобильный и пешеходный трафик вдоль помещения. Помещение располагается в окружений сетевых арендаторов: Магнит, ВинЛаб.

Арендатор: "Кофейня", месячная арендная плата 100 000 рублей. Договор аренды заключен до 09.09.2029 года. Ежегодная индексация до 7%

Окупаемость 11 лет.

Стоимость 13,2 млн. рублей.