Sell Buy Rent Estate Sell Buy Rent Estate
+7 (495) 478 79 87
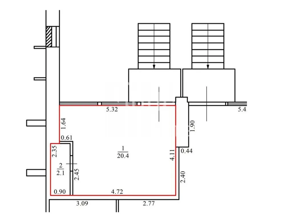
Лот №1107

Продажа торгового помещения с арендатором пивной магазин Свежо и Точка

г. Москва, Мурановская улица, 7
Алтуфьево
Цена обьекта
13 200 000 ₽
Цена за м2
586 667 ₽
Площадь: 22,5 м2
Планировка: Открытая
Этаж: 1 из 12
Отделка: качественный ремонт
Высота потолков: 3 м
Парковка: Перед фасадом
Электрическая мощность: 10кВт
Вытяжка: есть

Информация об арендаторе

Арендатор: Пивной магазин
Месячная арендная плата: 100 000 ₽
Ежегодная индексация: 5 %
Годовой арендный поток: 1 200 000 ₽
Окупаемость: 11.0 лет
Доходность: 9% годовых

Коммерческие условия

Общая стоимость объекта: 13 200 000 ₽
Цена за м2: 586 667 ₽
Налогообложение: УСН
Комиссия: без комиссии
Продажа торгового помещения с арендатором «Пивной магазин» площадью 22,5 м2 расположенного по адресу: Москва, Мурановская улица, 7 (11 минут пешком, 5 минут на транспорте от метро Алтуфьево).

Помещение располагается на 1-м этаже первой линии жилого комплекса. В шаговой доступности от помещения, остановка общественного транспорта. Помещение находится в окружении сетевых арендаторов. Интенсивный автомобильный и пешеходный трафик вдоль помещения. Есть место для размещения рекламы. Парковка перед фасадом.

В помещении открытая планировка, отдельный вход с фасада, высота потолка 3 м, витринные окна по фасаду. Электрическая мощность 10 кВт.

Арендатор: «Пивной магазин», месячная арендная плата 100 000 рублей. Договор аренды подписан на 11 месяцев., с автоматической пролонгацией. Безусловная ежегодная индексация 5%.

Окупаемость 11.0 лет.

Стоимость 13 200 000 рублей. Без комиссии.

Налогообложение: УСН.