Sell Buy Rent Estate Sell Buy Rent Estate
+7 (495) 478 79 87
Лот №1811

Продажа торгового помещения в ЮВАО

г. Москва, 1-я улица Текстильщиков, 12/9
Текстильщики
Цена обьекта
17 000 000 ₽
Цена за м2
96 977 ₽
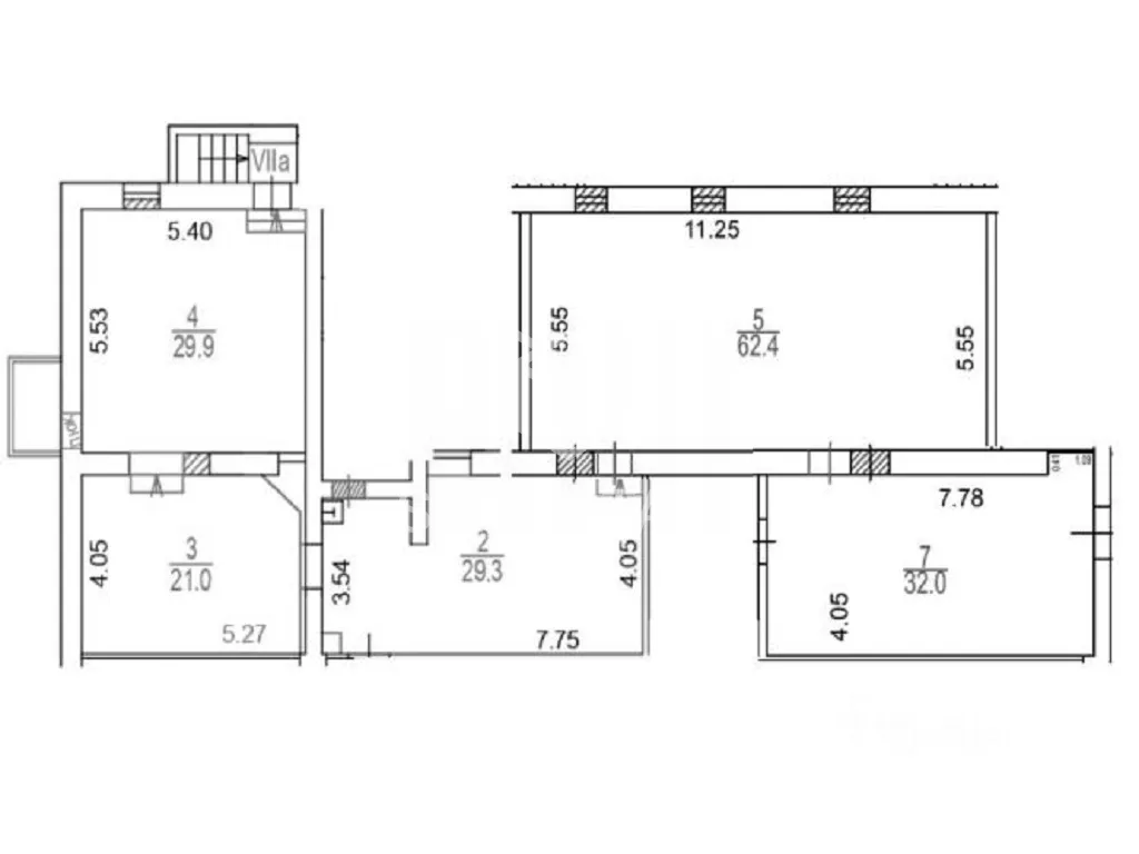
Площадь: 175,3 м2
Планировка: Смешанная
Этаж: 1 из 5
Отделка: качественный ремонт
Высота потолков: 2,3 м
Парковка: Перед фасадом
Электрическая мощность: 15кВт
Вытяжка: есть

Коммерческие условия

Общая стоимость объекта: 17 000 000 ₽
Цена за м2: 96 977 ₽
Налогообложение: УСН
Комиссия: без комиссии
Продажа торгового помещения площадью 175,3 м2 расположенного по адресу: Москва, 1-я улица Текстильщиков, 12/9 (10 минут пешком от метро Текстильщики).

Полуподвальное помещение жилого дома. В шаговой доступности от помещения, остановка общественного транспорта. Парковка перед фасадом.

В помещении смешанная планировка, отдельный вход с фасада, высота потолка 2,3 м, мокрая точка, окна маленькие (форточки для вентиляции). Электрическая мощность 15 кВт.

Стоимость 17 000 000 рублей. Без комиссии.

Налогообложение: УСН.