Sell Buy Rent Estate Sell Buy Rent Estate
+7 (495) 478 79 87
Лот №2015

Продажа помещения свободного назначения с арендатором Студия Йоги и др.

г. Москва, улица Марии Ульяновой, 7
Новаторская
Цена обьекта
28 500 000 ₽
Цена за м2
128 321 ₽
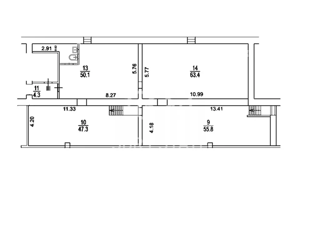
Площадь: 222,1 м2
Планировка: Открытая
Этаж: 1,-1 из 8
Отделка: качественный ремонт
Высота потолков: 2,7 м
Парковка: Перед фасадом
Электрическая мощность: 15кВт
Вытяжка: есть

Информация об арендаторе

Арендатор: Студия йоги
Месячная арендная плата: 280 000 ₽
Ежегодная индексация: 7 %
Годовой арендный поток: 3 360 000 ₽
Окупаемость: 8.5 лет
Доходность: 12% годовых

Коммерческие условия

Общая стоимость объекта: 28 500 000 ₽
Цена за м2: 128 321 ₽
Комиссия: без комиссии
Продажа помещения свободного назначения с арендатором «Студия йоги/школа исторического фехтования» площадью 222,1 м2 расположенного по адресу: Москва, улица Марии Ульяновой, 7 (10 минут пешком от метро Новаторская).

Помещение располагается на цокольном этаже первой линии в центре жилого массива. В шаговой доступности от помещения, остановка общественного транспорта. Помещение находится в окружении сетевых арендаторов. Интенсивный автомобильный и пешеходный трафик вдоль помещения. Есть место для размещения рекламы. Парковка перед фасадом.

В помещении открытая планировка, высота потолка 2,7 м. Электрическая мощность 15 кВт.

Арендаторы: «Студия йоги/школа исторического фехтования», месячная арендная плата 280 000 рублей. Ежегодная индексация 7%.

Окупаемость 8.5 лет.

Стоимость 28 500 000 рублей. Без комиссии.