Sell Buy Rent Estate Sell Buy Rent Estate
+7 (495) 478 79 87
Лот №2019

Продажа помещения свободного назначения 42,8м2

г. Москва, Денисовский переулок, 9
Бауманская
Цена обьекта
11 000 000 ₽
Цена за м2
257 009 ₽
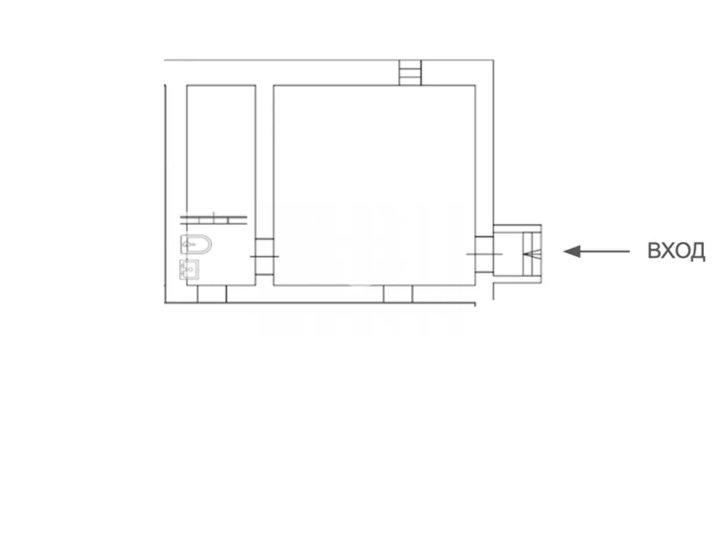
Площадь: 42,8 м2
Планировка: Открытая
Этаж: 1,-1 из 5
Отделка: качественный ремонт
Высота потолков: 2,6 м
Парковка: Перед фасадом
Электрическая мощность: 15кВт
Вытяжка: есть

Коммерческие условия

Общая стоимость объекта: 11 000 000 ₽
Цена за м2: 257 009 ₽
Комиссия: без комиссии
Продажа торгового помещения площадью 42,8 м2 расположенного по адресу: Москва, Денисовский переулок, 9 (10 минут пешком от метро Бауманская).

Помещение располагается на цокольном этаже первой линии в центре жилого массива. В шаговой доступности от помещения, остановка общественного транспорта. Помещение находится в окружении сетевых арендаторов. Интенсивный пешеходный трафик вдоль помещения. Есть место для размещения рекламы. Парковка перед фасадом.

В помещении открытая планировка, отдельный вход, высота потолка 2,6 м. Электрическая мощность 15 кВт.

Стоимость 11 000 000 рублей. Без комиссии.