Sell Buy Rent Estate Sell Buy Rent Estate
+7 (495) 478 79 87
Лот №2521

Продажа торгового помещения с арендатором Кофейня

г. Москва, Муравская улица, 38Бк4
Пятницкое шоссе
Цена обьекта
43 000 000 ₽
Цена за м2
625 910 ₽
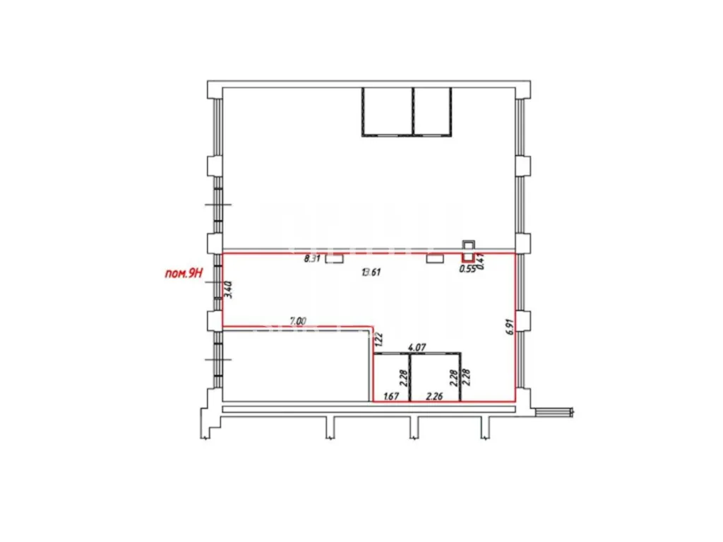
Площадь: 68,7 м2
Планировка: Открытая
Этаж: 1 из 32
Отделка: качественный ремонт
Высота потолков: 3 м
Парковка: Перед фасадом
Электрическая мощность: 14кВт
Вытяжка: есть

Информация об арендаторе

Арендатор: Кофейня
Срок аренды от: 2026
Срок аренды до: 2036
Месячная арендная плата: 280 000 ₽
Ежегодная индексация: 7 %
Годовой арендный поток: 3 360 000 ₽
Окупаемость: 12.8 лет
Доходность: 8% годовых

Коммерческие условия

Общая стоимость объекта: 43 000 000 ₽
Цена за м2: 625 910 ₽
Налогообложение: УСН
Комиссия: без комиссии
Продажа торгового помещения с арендатором кофейня «SURF COFFEE» площадью 68,7 м2 расположенного по адресу: Москва, Муравская улица, 38Бк4 ( 6 минут на транспорте от метро Пятницкое шоссе).

Помещение располагается на 1-м этаже первой линии жилого комплекса. В шаговой доступности от помещения, остановка общественного транспорта. Помещение находится в окружении сетевых арендаторов. Интенсивный автомобильный и пешеходный трафик вдоль помещения. Есть место для размещения рекламы. Парковка перед фасадом.

В помещении открытая планировка, отдельный вход с фасада, высота потолка 3 м, витринные окна по фасаду. Электрическая мощность 14 кВт.

Арендатор: кофейня «SURF COFFEE», месячная арендная плата с 18.02.2026 по 17.05.2026 — арендные каникулы; с 18.05.2026 по 28.02.2027 — 200 000 рублей.; с 01.03.2027 — 280 000 рублей. Договор аренды подписан с 2026 года по 2036 год. безусловная ежегодная индексация 7%.

Окупаемость 12.8 лет.

Стоимость 43 000 000 рублей. Без комиссии.

Налогообложение: УСН.