Sell Buy Rent Estate Sell Buy Rent Estate
+7 (495) 478 79 87
Лот №2516

Продажа готового арендного бизнеса с арендатором Магнит

г. Можайск, улица Ватутина, 8А
Апрелевка
Цена обьекта
43 700 000 ₽
Цена за м2
123 796 ₽
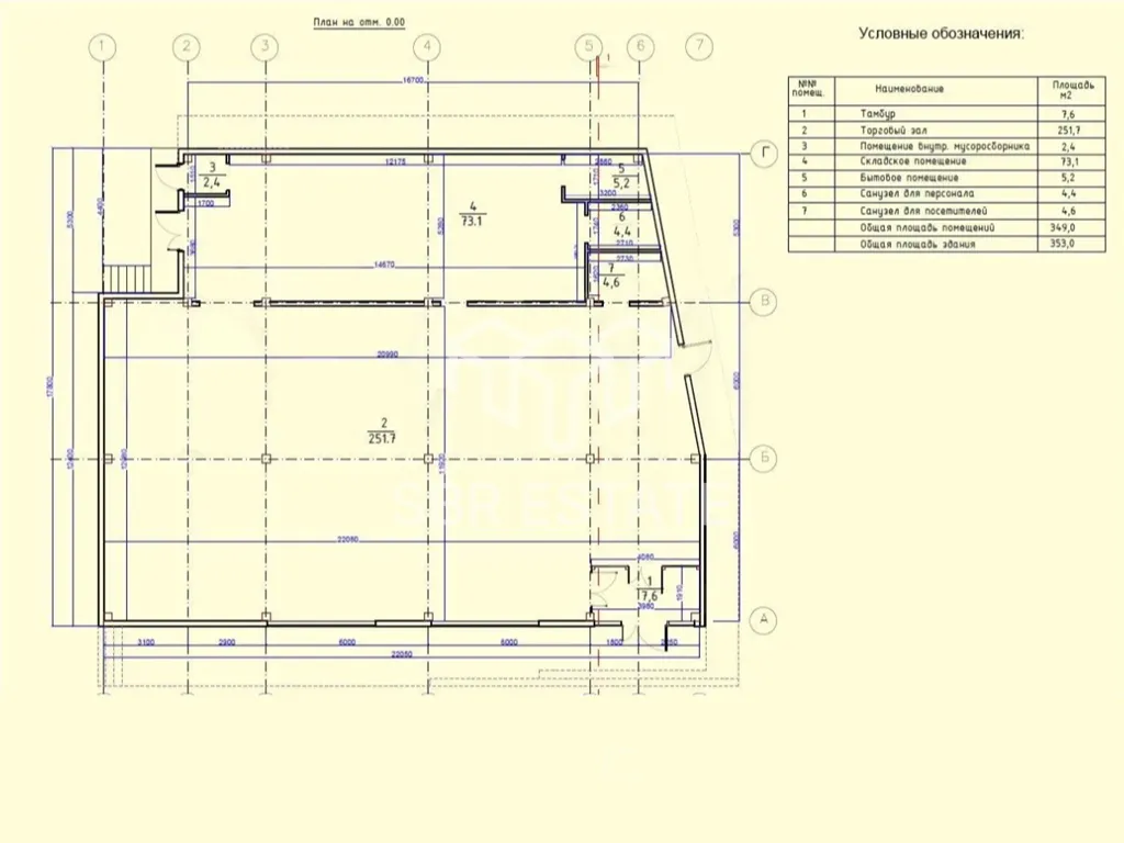
Площадь: 353 м2
Планировка: Открытая
Этаж: 1 из 1
Отделка: качественный ремонт
Высота потолков: 3,8 м
Парковка: Перед фасадом
Электрическая мощность: 70кВт
Вытяжка: есть

Информация об арендаторе

Арендатор: Магнит
Срок аренды от: 09.2025
Срок аренды до: 09.2035
Месячная арендная плата: 380 000 ₽
Годовой арендный поток: 4 560 000 ₽
Окупаемость: 9.6 лет
Доходность: 10% годовых

Коммерческие условия

Общая стоимость объекта: 43 700 000 ₽
Цена за м2: 123 796 ₽
Комиссия: без комиссии
Продажа одноэтажного отдельно стоящего здания с арендатором «Магнит» площадью 353 м2 расположенного по адресу: Московская область, Можайск, улица Ватутина, 8А ( 64 минут на транспорте от станции МЦД D4 Апрелевка).

В шаговой доступности от помещения, остановка общественного транспорта. Помещение находится в окружении сетевых арендаторов. Интенсивный автомобильный и пешеходный трафик вдоль помещения. Есть место для размещения рекламы. Парковка перед фасадом. Земельный участок 9,8 соток в собственности. Раздельные зона разгрузки и вход для клиентов. Все коммуникации центральные.

В помещении открытая планировка, отдельный вход с фасада, высота потолка 3,8 м, витринные окна по фасаду. Электрическая мощность 70 кВт.

Арендатор: «Магнит», месячная арендная плата до конца 2026 года 300 000 рублей, с 01.01.2027 года 380 000 рублей, 5% от РТО. Договор аренды подписан с 09.2025 года по 09.2035 год.

Окупаемость 9.6 лет.

Стоимость 43 700 000 рублей. Без комиссии.