Sell Buy Rent Estate Sell Buy Rent Estate
+7 (495) 478 79 87
Лот №2578

Продажа торгового помещения с арендаторами Озон и Фитнес Клуб.

г. Москва, Кутузовский проспект, 26к1
Кутузовская
Цена обьекта
32 500 000 ₽
Цена за м2
300 926 ₽
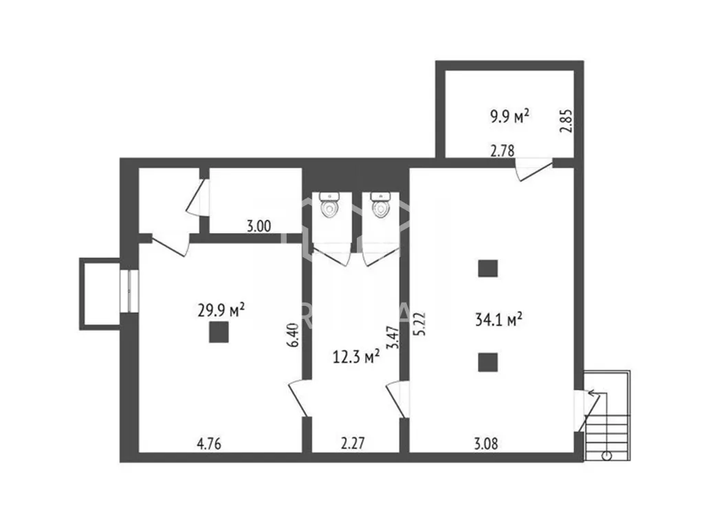
Площадь: 108 м2
Планировка: Смешанная
Этаж: 1 из 9
Отделка: качественный ремонт
Высота потолков: 3 м
Парковка: Перед фасадом
Электрическая мощность: 20кВт
Вытяжка: есть

Информация об арендаторе

Арендатор: Озон
Месячная арендная плата: 300 000 ₽
Годовой арендный поток: 3 600 000 ₽
Окупаемость: 9.0 лет
Доходность: 11% годовых

Коммерческие условия

Общая стоимость объекта: 32 500 000 ₽
Цена за м2: 300 926 ₽
Налогообложение: УСН
Комиссия: без комиссии
Продажа торгового помещения с арендатором Озон, Фитнес клуб площадью 108 м2 расположенного по адресу: Москва, Кутузовский проспект, 26к1 (6 минут пешком от метро Кутузовская).

Помещение располагается в подвальном этаже первой линии в центре жилого массива. В шаговой доступности от помещения, остановка общественного транспорта. Помещение находится в окружении сетевых арендаторов. Интенсивный автомобильный и пешеходный трафик вдоль помещения. Есть место для размещения рекламы. Парковка перед фасадом.

В помещении смешанная планировка, отдельный вход с фасада, высота потолка 3 м. Электрическая мощность 20 кВт.

Арендатор: Озон, фитнес центр, общая месячная арендная плата 300 000 рублей. Договора аренды подписаны на 11 месяцев. Ежегодная индексация.
Озон (35 м2) месячная арендная плата 150 000 рублей.
Фитнес центр (73) месячная арендная плата 150 000 рублей.

Окупаемость 9.0 лет.

Стоимость 32 500 000 рублей. Без комиссии.

Налогообложение: УСН.