Sell Buy Rent Estate Sell Buy Rent Estate
+7 (495) 478 79 87
Лот №615

Продажа коммерческого помещения с арендатором Самокат

г. Москва, Мантулинская улица, 12
Ул. 1905 года
Цена обьекта
64 800 000 ₽
Цена за м2
295 890 ₽
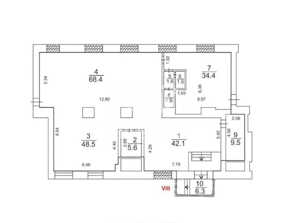
Площадь: 219 м2
Планировка: Открытая
Этаж: 1 из 5
Отделка: качественный ремонт
Высота потолков: 2,7 м
Парковка: Перед фасадом
Электрическая мощность: 52кВт
Вытяжка: есть

Информация об арендаторе

Арендатор: Самокат
Срок аренды от: 2024
Срок аренды до: 2031
Месячная арендная плата: 650 000 ₽
Ежегодная индексация: 6 %
Годовой арендный поток: 7 800 000 ₽
Окупаемость: 8.3 лет
Доходность: 12% годовых

Коммерческие условия

Общая стоимость объекта: 64 800 000 ₽
Цена за м2: 295 890 ₽
Налогообложение: УСН
Комиссия: без комиссии
Продажа торгового помещения с арендатором «Самокат» площадью 219 м2 расположенного по адресу: Москва, Мантулинская улица, 12 (14 минут пешком минут на транспорте от метро Улица 1905 года).

Помещение располагается на 1-м этаже первой линии жилого комплекса. В шаговой доступности от помещения, остановка общественного транспорта. Помещение находится в окружении сетевых арендаторов. Интенсивный автомобильный и пешеходный трафик вдоль помещения. Есть место для размещения рекламы. Парковка перед фасадом.

В помещении открытая планировка, отдельный вход с фасада, высота потолка 2,7 м, витринные окна по фасаду. Электрическая мощность 52 кВт.

Арендатор: «Самокат», месячная арендная плата 650000 рублей. Договор аренды подписан с 2024 года по 2031 год. Ежегодная индексация 6%.

Окупаемость 8.3 лет.

Стоимость 64 800 000 рублей. Без комиссии.

Налогообложение: УСН.