Sell Buy Rent Estate Sell Buy Rent Estate
+7 (495) 478 79 87
Лот №810

Продажа готового арендного бизнеса с арендатором даркстор Озон

г. Москва, Старокалужское шоссе, 62
Воронцовская
Цена обьекта
136 000 000 ₽
Цена за м2
257 673 ₽
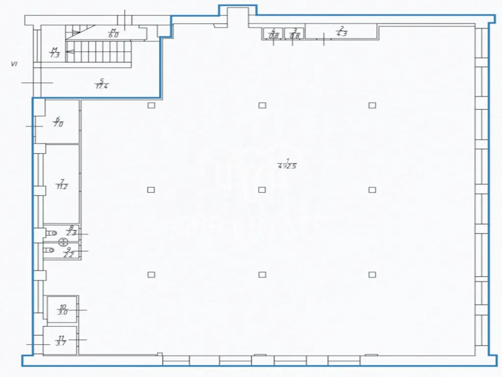
Площадь: 527,8 м2
Планировка: Открытая
Этаж: 1 из 2
Отделка: качественный ремонт
Высота потолков: 3 м
Парковка: Перед фасадом
Электрическая мощность: 50кВт
Вытяжка: есть

Информация об арендаторе

Арендатор: даркстор Озон
Срок аренды от: 2024
Срок аренды до: 2029
Месячная арендная плата: 1 160 000 ₽
Ежегодная индексация: 7 %
Годовой арендный поток: 13 920 000 ₽
Окупаемость: 9.8 лет
Доходность: 10% годовых

Коммерческие условия

Общая стоимость объекта: 136 000 000 ₽
Цена за м2: 257 673 ₽
Налогообложение: НДС
Комиссия: без комиссии
Продажа торгового арендного бизнеса 527.8 м2 с арендатором супермаркет даркстор "Озон" на ул. Старокалужское шоссе д.62 (5 минут пешком от метро Воронцовская). 1 линия домов со стороны улицы Власова.

Помещение 527.8 м2, располагается на 1 этаже, открытая планировка, отдельный вход с улицы Власова, высота потолка 3 м, витринные окна по фасаду. Электрическая мощность 50 кВт. Парковка перед фасадом. Место для размещения рекламы.

Помещение располагается на первой линии в 30 м от станции Воронцовская, в центре жилого массива, рядом остановка общественного транспорта. Интенсивный автомобильный и пешеходный трафик вдоль помещения.

Арендатор: сеть даркстор "Озон", месячная арендная плата 1 160 000 рублей включая НДС Договор аренды подписан на 5 лет с февраля 2024 года. Ежегодная индексация 7%. Окупаемость 9.8 лет.

Стоимость 136 млн. рублей включая НДС Без комиссии.