Sell Buy Rent Estate Sell Buy Rent Estate
+7 (495) 478 79 87
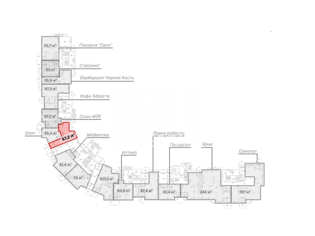
Лот №901

Продажа коммерческого помещения

г. Домодедово, Высотная улица, 9
Домодедовская
Цена обьекта
23 000 000 ₽
Цена за м2
342 262 ₽
Площадь: 67,2 м2
Планировка: Открытая
Этаж: 1 из 17
Отделка: За выездом арендатора
Высота потолков: 3,5 м
Парковка: Перед фасадом
Электрическая мощность: 10кВт
Вытяжка: есть

Коммерческие условия

Общая стоимость объекта: 23 000 000 ₽
Цена за м2: 342 262 ₽
Налогообложение: УСН
Комиссия: без комиссии
Продажа коммерческого помещения 67,2 м2 расположенного по адресу: Московская область, городской округ Домодедово, село Домодедово, Высотная улица, 9 ( 45 минут на транспорте до метро Домодедовская). 1-я линия домов.
Помещение располагается на 1-м этаже жилого комплекса. Рядом с помещением остановка общественного транспорта. В помещении открытая планировка, отдельный вход с фасада, высота потолка 3,5 м, витринные окна по фасаду. Электрическая мощность 10 кВт. Парковка перед фасадом. Интенсивный автомобильный и пешеходный трафик вдоль помещения. Помещение располагается в окружении сетевых арендаторов. Есть место для размещения рекламы. Сдан в 2022 году.
Налогообложение: УСН.
Стоимость 23 млн. рублей. Без комиссии.