Sell Buy Rent Estate Sell Buy Rent Estate
+7 (495) 478 79 87
Лот №1732

Продажа готового арендного бизнеса с Аптекой Самсон-Фарма

г. Москва, Ярцевская улица, 32
Молодёжная
Цена обьекта
125 700 000 ₽
Цена за м2
655 712 ₽
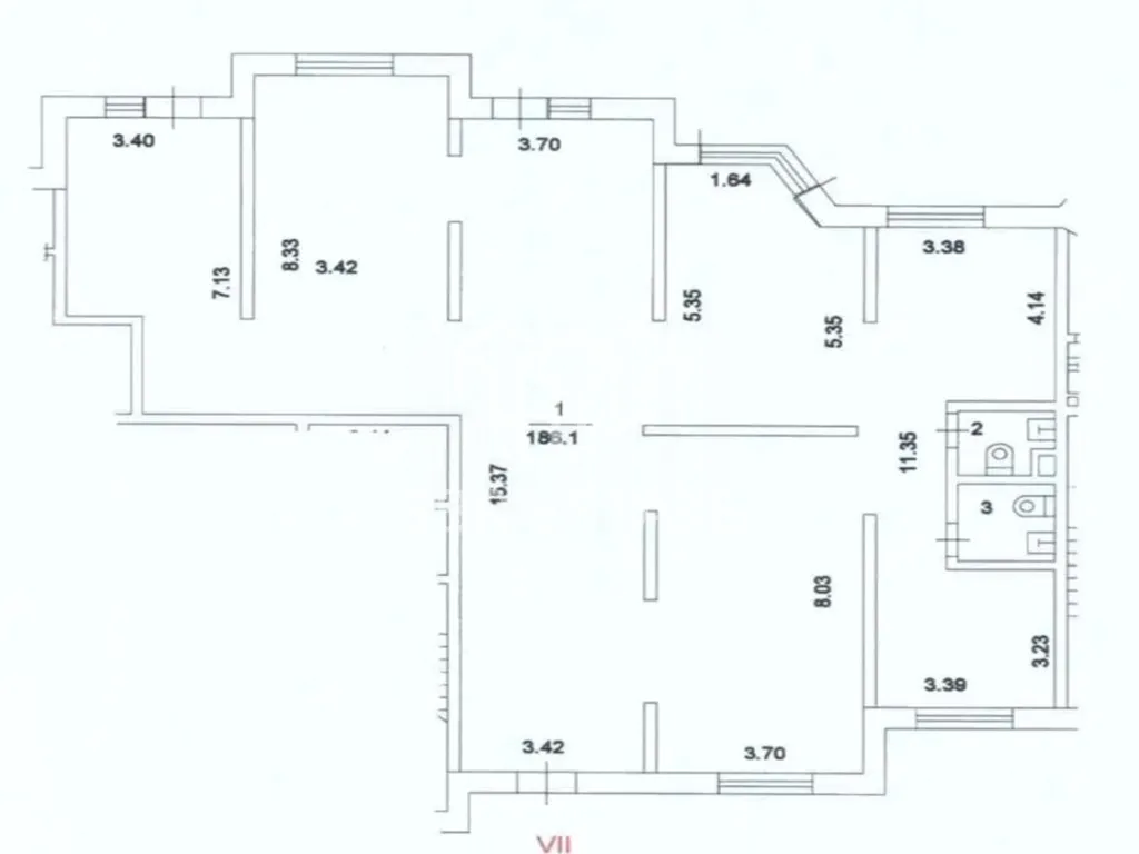
Площадь: 191,7 м2
Планировка: Открытая
Этаж: 1 из 19
Отделка: качественный ремонт
Высота потолков: 3,98 м
Парковка: Перед фасадом
Электрическая мощность: 38кВт
Вытяжка: есть

Информация об арендаторе

Арендатор: Самсон-Фарма
Срок аренды до: 03.01.2028
Месячная арендная плата: 815 000 ₽
Ежегодная индексация: 10 %
Годовой арендный поток: 9 780 000 ₽
Окупаемость: 12.9 лет
Доходность: 8% годовых

Коммерческие условия

Общая стоимость объекта: 125 700 000 ₽
Цена за м2: 655 712 ₽
Налогообложение: УСН
Комиссия: без комиссии
Продажа торгового помещения с арендатором «Самсон-Фарма» и Лаборатория ДНКом анализы, площадью 191,7 м2 расположенного по адресу: Москва, Ярцевская улица, 32 (4 минут пешком от метро Молодёжная).

Помещение располагается на 1-м этаже первой линии жилого комплекса. В шаговой доступности от помещения, остановка общественного транспорта. Помещение находится в окружении сетевых арендаторов. Интенсивный автомобильный и пешеходный трафик вдоль помещения. Есть место для размещения рекламы. Парковка перед фасадом.

В помещении зальная планировка, 3 отдельных входа (один с фасадной части здания, два со двора), высота потолка 3,98 м, витринные окна по фасаду. Наличие зоны разгрузки/погрузки. Электрическая мощность 38 кВт.

Арендаторы: «Самсон-Фарма», Лаборатория ДНКом анализы, общая месячная арендная плата 815 000 рублей. Ежегодная индексация 10%.

Окупаемость 12.9 лет.

Стоимость 125 700 000 рублей. Без комиссии.

Налогообложение: УСН.