Sell Buy Rent Estate Sell Buy Rent Estate
+7 (495) 478 79 87
Лот №1928

Продажа помещения с арендатором Детский центр

г. Москва, улица Марии Ульяновой, 9к3
Новаторская
Цена обьекта
31 000 000 ₽
Цена за м2
223 022 ₽
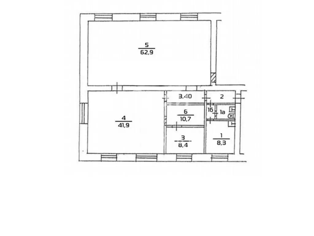
Площадь: 139 м2
Планировка: Смешанная
Этаж: 1,2 из 8
Отделка: качественный ремонт
Высота потолков: 2,7 м
Парковка: Перед фасадом
Электрическая мощность: 30кВт
Вытяжка: есть

Информация об арендаторе

Арендатор: Мир решений
Месячная арендная плата: 330 000 ₽
Ежегодная индексация: 7 %
Годовой арендный поток: 3 960 000 ₽
Окупаемость: 7.8 лет
Доходность: 13% годовых

Коммерческие условия

Общая стоимость объекта: 31 000 000 ₽
Цена за м2: 223 022 ₽
Налогообложение: УСН
Комиссия: без комиссии
Продажа торгового помещения с арендатором детский центр «Мир решений» площадью 139 м2 расположенного по адресу: Москва, улица Марии Ульяновой, 9к3 (16 минут пешком от метро Новаторская).

Помещение располагается на 2-м этаже вход с первого этажа первой линия в центре жилого массива. В шаговой доступности от помещения, остановка общественного транспорта. Помещение находится в окружении сетевых арендаторов. Интенсивный пешеходный трафик вдоль помещения. Есть место для размещения рекламы. Парковка перед фасадом.

В помещении смешанная планировка, высота потолка 2,7 м. Электрическая мощность 30 кВт.

Арендатор: детский центр «Мир решений», месячная арендная плата 330 000 рублей. Договор аренды подписан с года по год. Ежегодная индексация 7%.

Окупаемость 7.8 лет.

Стоимость 31 000 000 рублей. Без комиссии.

Налогообложение: УСН