Sell Buy Rent Estate Sell Buy Rent Estate
+7 (495) 478 79 87
Лот №492

Продажа готового арендного бизнеса с арендатором Красное и Белое

г. Москва, улица Дмитриевского, 3
Ул. Дмитриевского
Цена обьекта
31 500 000 ₽
Цена за м2
197 121 ₽
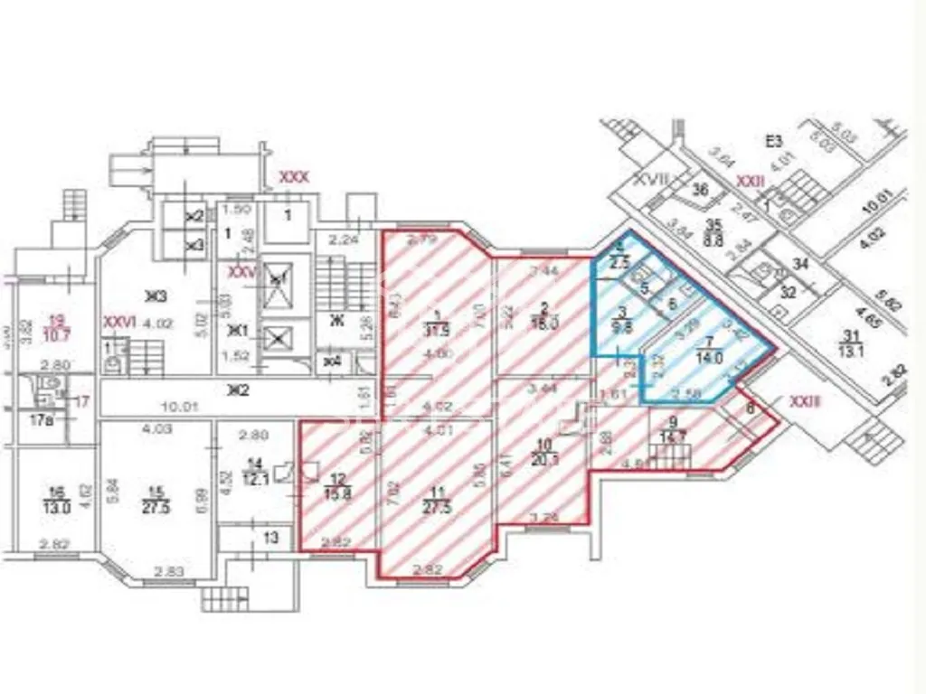
Площадь: 159,8 м2
Планировка: Открытая
Этаж: 1 из 16
Отделка: качественный ремонт
Высота потолков: 3 м
Парковка: Перед фасадом
Электрическая мощность: 32кВт
Вытяжка: есть

Информация об арендаторе

Арендатор: Красное и Белое
Срок аренды от: 2024
Срок аренды до: 2034
Месячная арендная плата: 250 000 ₽
Ежегодная индексация: 3 %
Годовой арендный поток: 3 000 000 ₽
Окупаемость: 10.5 лет
Доходность: 10% годовых

Коммерческие условия

Общая стоимость объекта: 31 500 000 ₽
Цена за м2: 197 121 ₽
Комиссия: без комиссии
Продажа коммерческого помещения 159,8 м2 с магазином Красное и Белое и Цветы Да по адресу на ул. Дмитриевского, 3 (3 минут пешком от метро Улица Дмитриевского). 1 линия домов.

Помещение 159,8 м2, располагается на 1 этаже, открытая планировка, отдельный вход с фасада, высота потолка 3 м, витринные окна по фасаду. Электрическая мощность 32 кВт. Парковка перед фасадом. Место для размещения рекламы.

Помещение располагается на первой линии жилого комплекса, в центре жилого массива, рядом остановка общественного транспорта. Интенсивный автомобильный и пешеходный трафик вдоль помещения. Помещение располагается в окружений сетевых арендаторов..

Арендаторы: магазин Красное и Белое и Цветы ДА
1. Арендатор: магазин Красное и Белое (арендует 129 м2), месячная арендная плата 200 000 рублей. Договор аренды подписан на 10 лет с июля 2024 года. Ежегодная индексация 3% по договоренности.
2. Арендатор: магазин Цветы ДА (29.8 м2), месячная арендная плата 50 000 рублей. Договор аренды подписан с января 2025 года.
Общая арендная плата 250 000 рублей

Окупаемость 10,7 лет.

Стоимость 32 млн. рублей. Без комиссии.