Sell Buy Rent Estate Sell Buy Rent Estate
+7 (495) 478 79 87
Лот №2274

Продажа торгового помещение с арендатором Вайлдберриз

г. Балашиха, улица Строителей, 1
Никольское
Цена обьекта
21 150 000 ₽
Цена за м2
223 337 ₽
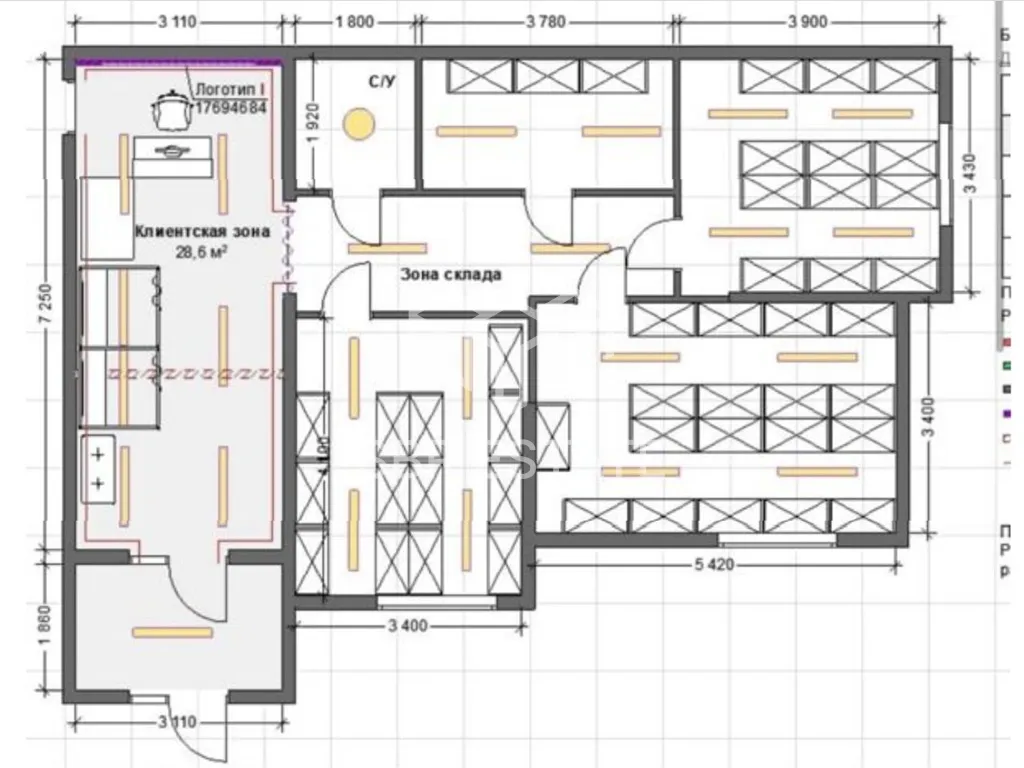
Площадь: 94,7 м2
Планировка: Открытая
Этаж: 1 из 25
Отделка: качественный ремонт
Высота потолков: 2,8 м
Парковка: Перед фасадом
Электрическая мощность: 19кВт
Вытяжка: есть

Информация об арендаторе

Арендатор: Вайлдберриз
Месячная арендная плата: 190 000 ₽
Годовой арендный поток: 2 280 000 ₽
Окупаемость: 9.3 лет
Доходность: 11% годовых

Коммерческие условия

Общая стоимость объекта: 21 150 000 ₽
Цена за м2: 223 337 ₽
Комиссия: без комиссии
Продажа торгового помещения с арендатором «Вайлдберриз» площадью 94,7 м2 расположенного по адресу: Московская область, Балашиха, улица Строителей, 1 (17 минут на транспорте от метро Никольское).

Помещение располагается на 1-м этаже первой линии жилого комплекса. В шаговой доступности от помещения, остановка общественного транспорта. Помещение находится в окружении сетевых арендаторов. Интенсивный автомобильный и пешеходный трафик вдоль помещения. Есть место для размещения рекламы. Парковка перед фасадом.

В помещении открытая планировка, отдельный вход с фасада, высота потолка 2,8 м, витринные окна по фасаду. Электрическая мощность 19 кВт.

Арендатор: «Вайлдберриз»(не франшиза), месячная арендная плата 190 000 рублей. Договор аренды подписан, арендатор арендует более 1 года. Ежегодная индексация 10%

Окупаемость 9.3 лет.

Стоимость 21 150 000 рублей. Без комиссии.