Sell Buy Rent Estate Sell Buy Rent Estate
+7 (495) 478 79 87
Лот №2492

Продажа торгового помещения с арендатором Пятерочка

г. Москва, улица Пришвина, 21
Бибирево
Цена обьекта
110 000 000 ₽
Цена за м2
287 883 ₽
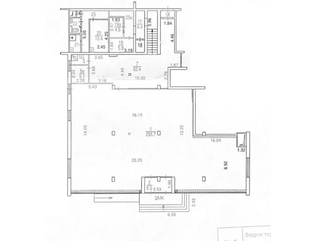
Площадь: 382,1 м2
Планировка: Открытая
Этаж: 1 из 12
Отделка: качественный ремонт
Высота потолков: 3 м
Парковка: Перед фасадом
Электрическая мощность: 70кВт
Вытяжка: есть

Информация об арендаторе

Арендатор: Пятерочка
Срок аренды от: 2023
Срок аренды до: 2032
Месячная арендная плата: 920 000 ₽
Годовой арендный поток: 11 040 000 ₽
Окупаемость: 10.0 лет
Доходность: 10% годовых

Коммерческие условия

Общая стоимость объекта: 110 000 000 ₽
Цена за м2: 287 883 ₽
Комиссия: без комиссии
Продажа торгового помещения с арендатором «Пятерочка» площадью 382,1 м2 расположенного по адресу: Москва, улица Пришвина, 21 (5 минут пешком от метро Бибирево).

Помещение располагается на 1-м этаже первой линии в центре жилого массива. В шаговой доступности от помещения, остановка общественного транспорта. Помещение находится в окружении сетевых арендаторов. Интенсивный автомобильный и пешеходный трафик вдоль помещения. Есть место для размещения рекламы. Парковка перед фасадом.

В помещении открытая планировка, отдельный вход с фасада, высота потолка 3 м, витринные окна по фасаду. Электрическая мощность 70 кВт.

Арендатор: «Пятерочка», месячная арендная плата 920 000 рублей, 6,5% от РТО. Договор аренды подписан с 2023 года по 2032 год.

Окупаемость 10.0 лет.

Стоимость 110 000 000 рублей. Без комиссии.