Sell Buy Rent Estate Sell Buy Rent Estate
+7 (495) 478 79 87
Лот №632

Продажа готового арендного бизнеса с арендатором МиниОтель

г. Москва, улица Адмирала Лазарева, 47к1
Бунинская Аллея
Цена обьекта
30 000 000 ₽
Цена за м2
238 095 ₽
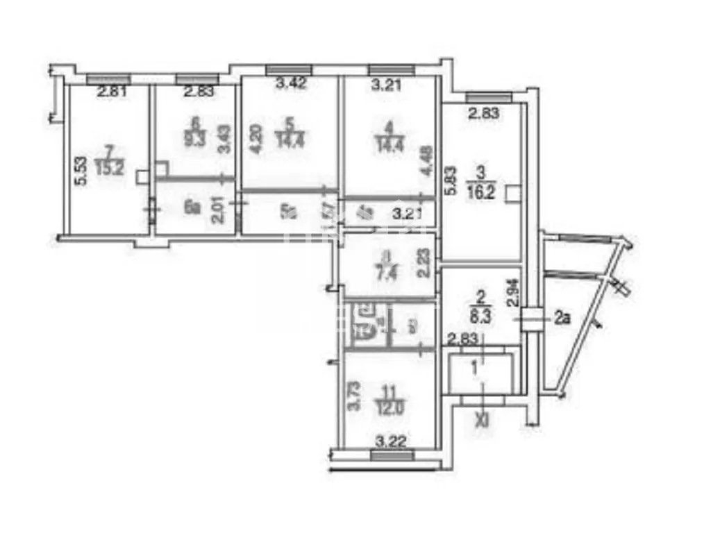
Площадь: 126 м2
Планировка: Открытая
Этаж: 1 из 14
Отделка: качественный ремонт
Высота потолков: 2,7 м
Парковка: Перед фасадом
Электрическая мощность: 30кВт
Вытяжка: нет

Информация об арендаторе

Арендатор: Массажный салон
Месячная арендная плата: 330 000 ₽
Ежегодная индексация: 7 %
Годовой арендный поток: 3 960 000 ₽
Окупаемость: 7.6 лет
Доходность: 13% годовых

Коммерческие условия

Общая стоимость объекта: 30 000 000 ₽
Цена за м2: 238 095 ₽
Налогообложение: УСН
Комиссия: без комиссии
Продажа готового арендного бизнеса площадью 126 м2 с арендатором МиниОтель на ул. Адмирала Лазарева, д. 47к1 (5 минут пешком от метро Бунинская Аллея). 1 линия домов.

Помещение 126 м2, располагается на 1 этаже, открытая планировка, отдельный вход с фасада, высота потолка 2,7м, витринные окна по фасаду. Электрическая мощность 30 кВт. Парковка перед фасадом. Место для размещения рекламы.

Помещение располагается на первой линии жилого комплекса, в центре жилого массива, рядом остановка общественного транспорта. Интенсивный автомобильный и пешеходный трафик вдоль помещения. Помещение располагается в окружений сетевых арендаторов: Папа Джонс, Сбербанк.

Арендатор: МиниОтель, месячная арендная плата 330 000 рублей.

Ежегодная индексация 7%. Окупаемость 7,6 лет.

Стоимость 30 млн. рублей. Без комиссии.