Sell Buy Rent Estate Sell Buy Rent Estate
+7 (495) 478 79 87
Лот №976

Продажа торгового помещения с арендатором Вайлдберриз

г. Москва, Большая Внуковская улица, 15
Аэропорт Внуково
Цена обьекта
32 000 000 ₽
Цена за м2
99 688 ₽
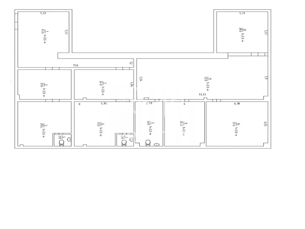
Площадь: 321 м2
Планировка: Открытая
Этаж: 1 из 9
Отделка: качественный ремонт
Высота потолков: 2,6 м
Парковка: Перед фасадом
Электрическая мощность: 52кВт
Вытяжка: есть

Информация об арендаторе

Арендатор: Вайлдберриз
Месячная арендная плата: 388 000 ₽
Ежегодная индексация: 7 %
Годовой арендный поток: 4 656 000 ₽
Окупаемость: 6.9 лет
Доходность: 14% годовых

Коммерческие условия

Общая стоимость объекта: 32 000 000 ₽
Цена за м2: 99 688 ₽
Налогообложение: УСН
Комиссия: без комиссии
Продажа торгового помещения с арендатором «Вайлдберриз» площадью 321 м2 расположенного по адресу: Москва, Новомосковский административный округ, посёлок Внуково, Большая Внуковская улица, 15 (9 минут пешком 6 минут на транспорте от метро Аэропорт Внуково).

Помещение располагается на цокольном этаже первой линии жилого комплекса. В шаговой доступности от помещения, остановка общественного транспорта. Помещение находится в окружении сетевых арендаторов. Интенсивный автомобильный и пешеходный трафик вдоль помещения. Есть место для размещения рекламы. Парковка перед фасадом.

В помещении открытая планировка, отдельный вход с фасада, высота потолка 2,6 м, витринные окна по фасаду. Электрическая мощность 52 кВт.

Арендаторы: «Вайлдберриз», «магазин эко- продукции(топленого масла)», Интернет магазин, общая месячная арендная плата 388 000 рублей.

Окупаемость 6,9 лет.

Стоимость 32 000 000 рублей. Без комиссии.

Налогообложение: УСН.