Sell Buy Rent Estate Sell Buy Rent Estate
+7 (495) 478 79 87
Лот №694

Продажа торгового помещения с арендатором Ozon в ЖК Квартал Западный

г. Москва, ЖК Квартал Западный, к2
Санино
Цена обьекта
25 000 000 ₽
Цена за м2
417 362 ₽
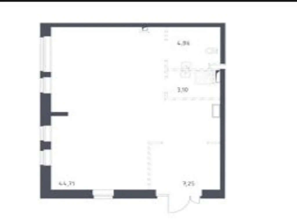
Площадь: 59,9 м2
Планировка: Открытая
Этаж: 1 из 7
Отделка: качественный ремонт
Высота потолков: 3 м
Парковка: Перед фасадом
Электрическая мощность: 15кВт
Вытяжка: есть

Информация об арендаторе

Арендатор: Озон
Месячная арендная плата: 179 700 ₽
Ежегодная индексация: 5 %
Годовой арендный поток: 2 156 400 ₽
Окупаемость: 11.6 лет
Доходность: 9% годовых

Коммерческие условия

Общая стоимость объекта: 25 000 000 ₽
Цена за м2: 417 362 ₽
Комиссия: без комиссии
Продажа торгового помещения площадью 59,9 м2 с арендатором Ozon по адресу: Новая Москва, район Внуково, деревня Большое Свинорье, ЖК Квартал Западный, к2 (10 минут пешком от метро Санино). 1 линия домов.

Помещение 59,9 м2, располагается на 1 этаже, открытая планировка, отдельный вход с фасада, высота потолка 3 м, витринные окна по фасаду. Электрическая мощность 15 кВт. Парковка перед фасадом. Место для размещения рекламы.

Помещение располагается на первой линии жилого комплекса, в центре жилого массива, рядом остановка общественного транспорта. Интенсивный автомобильный и пешеходный трафик вдоль помещения.

Арендатор: Ozon, месячная арендная плата 179 700 рублей. Безусловная ежегодная индексация 5% (с 3-го года).

Окупаемость 11,6 лет.

Стоимость 25 млн. рублей. Без комиссии.