Sell Buy Rent Estate Sell Buy Rent Estate
+7 (495) 478 79 87
Лот №907

Продажа торгового помещения с арендатором Самокат

г. Москва, Подъёмный переулок, 1
Нижегородская
Цена обьекта
52 000 000 ₽
Цена за м2
194 030 ₽
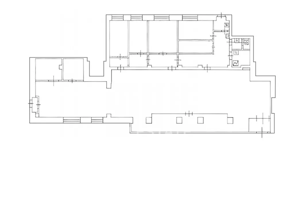
Площадь: 268 м2
Планировка: Смешанная
Этаж: 1 из 9
Отделка: качественный ремонт
Высота потолков: 3,5 м
Парковка: Перед фасадом
Электрическая мощность: 51кВт
Вытяжка: есть

Информация об арендаторе

Арендатор: Самокат
Срок аренды от: марта 2024
Срок аренды до: марта 2029
Месячная арендная плата: 441 000 ₽
Ежегодная индексация: 5 %
Годовой арендный поток: 5 292 000 ₽
Окупаемость: 9.8 лет
Доходность: 10% годовых

Коммерческие условия

Общая стоимость объекта: 52 000 000 ₽
Цена за м2: 194 030 ₽
Налогообложение: УСН
Комиссия: без комиссии
Продажа торгового помещения с арендатором «Самокат» площадью 268 м2 расположенного по адресу: Москва, Подъёмный переулок, 1 (20 минут пешком, 5 минут на транспорте от метро Нижегородская).

Помещение располагается на 1-м этаже первой линии жилого комплекса. В шаговой доступности от помещения, остановка общественного транспорта. Помещение находится в окружении сетевых арендаторов. Интенсивный автомобильный и пешеходный трафик вдоль помещения. Есть место для размещения рекламы. Парковка перед фасадом.

В помещении смешанная планировка, отдельный вход с фасада, высота потолка 3,5 м, витринные окна по фасаду. Электрическая мощность 51 кВт.

Арендатор: «Самокат», месячная арендная плата 441 000 рублей. Договор аренды подписан с марта 2024 года по март 2029 года. Ежегодная индексация 5%.

Окупаемость 9.8 лет.

Стоимость 52 000 000 рублей. Без комиссии.

Налогообложение: УСН.