Sell Buy Rent Estate Sell Buy Rent Estate
+7 (495) 478 79 87
Лот №1218

Продажа готового арендного бизнеса с арендатором Градусы

г. Москва, Беловежская улица, 71
Сетунь
Цена обьекта
29 900 000 ₽
Цена за м2
242 105 ₽
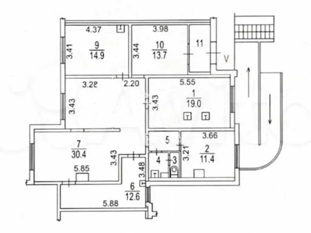
Площадь: 123,5 м2
Планировка: Открытая
Этаж: 1 из 17
Отделка: качественный ремонт
Высота потолков: 2,8 м
Парковка: Перед фасадом
Электрическая мощность: 30кВт
Вытяжка: есть

Информация об арендаторе

Арендатор: Градусы
Срок аренды от: 2025
Срок аренды до: 2032
Месячная арендная плата: 240 000 ₽
Ежегодная индексация: 5 %
Годовой арендный поток: 2 880 000 ₽
Окупаемость: 10.4 лет
Доходность: 10% годовых

Коммерческие условия

Общая стоимость объекта: 29 900 000 ₽
Цена за м2: 242 105 ₽
Налогообложение: УСН
Комиссия: без комиссии
Продажа торгового помещения с арендатором «Градусы» площадью 123,5 м2 расположенного по адресу: Москва, Беловежская улица, 71 (10 минут на транспорте от метро Сетунь).

Помещение располагается на 1-м этаже первой линии жилого массива. В шаговой доступности от помещения, остановка общественного транспорта. Помещение находится в окружении сетевых арендаторов. Интенсивный автомобильный и пешеходный трафик вдоль помещения. Есть место для размещения рекламы. Парковка перед фасадом.

В помещении открытая планировка, отдельный вход с фасада, высота потолка 2,8 м, витринные окна по фасаду. Электрическая мощность 30 кВт.

Арендатор: «Градусы», месячная арендная плата 240 000 рублей. Договор аренды подписан с 2025 года по 2032 год. Ежегодная индексация 5%.

Окупаемость без индексации 10,4 лет.

Окупаемость с индексацией 8,7 лет.

Стоимость 29 900 000 рублей. Без комиссии.

23.5 млн сразу и 6.4 млн в рассрочку на 3.5 года в Департамент Городского Имущества Москвы. (1.4% годовых!!!! практически беспроцентная рассрочка).
Продажа юр. лица. Сделка путем продажи 100% доли ООО. Возможна продажа без юр. лица - другие условия по стоимости.

Налогообложение: УСН.