Sell Buy Rent Estate Sell Buy Rent Estate
+7 (495) 478 79 87
Лот №2556

Продажа торгового помещения с арендатором Пятерочка

г. Зеленоград, Зеленоград, к901Б
Зеленоград — Крюково
Цена обьекта
170 000 000 ₽
Цена за м2
379 464 ₽
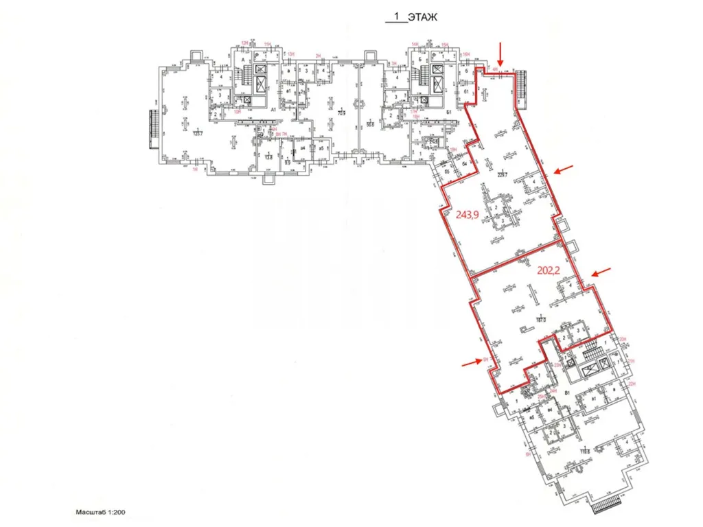
Площадь: 448 м2
Планировка: Открытая
Этаж: 1 из 15
Отделка: качественный ремонт
Высота потолков: 4,35 м
Парковка: Перед фасадом
Электрическая мощность: 80кВт
Вытяжка: есть

Информация об арендаторе

Арендатор: Пятерочка
Срок аренды от: 2026
Срок аренды до: 2036
Месячная арендная плата: 1 400 000 ₽
Ежегодная индексация: 5 %
Годовой арендный поток: 16 800 000 ₽
Окупаемость: 10.1 лет
Доходность: 10% годовых

Коммерческие условия

Общая стоимость объекта: 170 000 000 ₽
Цена за м2: 379 464 ₽
Комиссия: без комиссии
Продажа торгового помещения с арендатором «Пятерочка» площадью 448 м2 расположенного по адресу: Москва, Зеленоград, к901Б (18 минут пешком. 5 минут на транспорте от станции МЦД D3 Зеленоград — Крюково).

Помещение располагается на 1-м этаже первой линии жилого комплекса. В шаговой доступности от помещения, остановка общественного транспорта. Помещение находится в окружении сетевых арендаторов. Интенсивный автомобильный и пешеходный трафик вдоль помещения. Есть место для размещения рекламы. Парковка перед фасадом.

В помещении открытая планировка, отдельный вход с фасада, высота потолка 4,35 м, витринные окна по фасаду. Электрическая мощность 80 кВт.

Арендатор: «Пятерочка», месячная арендная плата с 1 мес 1 100 000 рублей, с 5 месяца 550 000 рублей, с 7-го месяца 1 100 000 рублей, со 2 года 1 400 000 рублей. Договор аренды подписан с 2026 года по 2036 год. Ежегодная индексация 5% по соглашению сторон с 3 года.

Окупаемость 10.1 лет.

Стоимость 170 000 000 рублей. Без комиссии.